Prix
228 000€
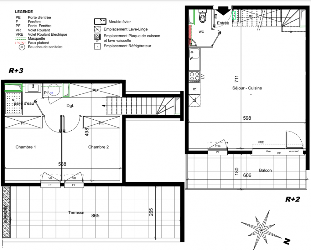
Type
Appt. au 2ème
Pièces
T3
Surface
67.49 m²
Exposition
-
Ville
Cavaillon (84300)
Livraison
2ème trimestre 2025
Informations
01 81 80 39 10

Présentation du programme "303 Coty"

Dernières opportunités en livraison immédiate : visitez, achetez et emménagez dès aujourd'hui !!
Ce programme en livraison immédiate permet de bénéficier d'une rentabilité rapide, avec une mise en location immédiate et des revenus locatifs dès l'achat.La réputation du Luberon n’est plus à faire et les investisseurs y trouvent d’excellentes opportunités de diversification de leur patrimoine immobilier. Alliant paysages spectaculaires, saveurs de terroir et programmation culturelle exceptionnelle, le Luberon attire chaque année 1,6 million de touristes et des milliers de résidents de long terme, conquis par son art de vivre unique et par son dynamisme économique.Avec son choix de surfaces bien adapté à la demande locative locale et son confort parfait, la résidence 303 Coty bénéficie d’une localisation optimale pour votre investissement locatif et patrimonial. En location meublée, touristique ou longue durée, elle offre une choix de placement immobilier neuf, et se transforme aisément en résidence secondaire.

Autres logements T3 du programme "303 Coty"

Disponibilité Prix Genre Pièces Surface Étage
Voir
Disponible
228 000€ Appt. T3 66.12m2 2ème
Voir
Disponible
228 000€ Appt. T3 68.9m2 2ème
DO NOT CLICK