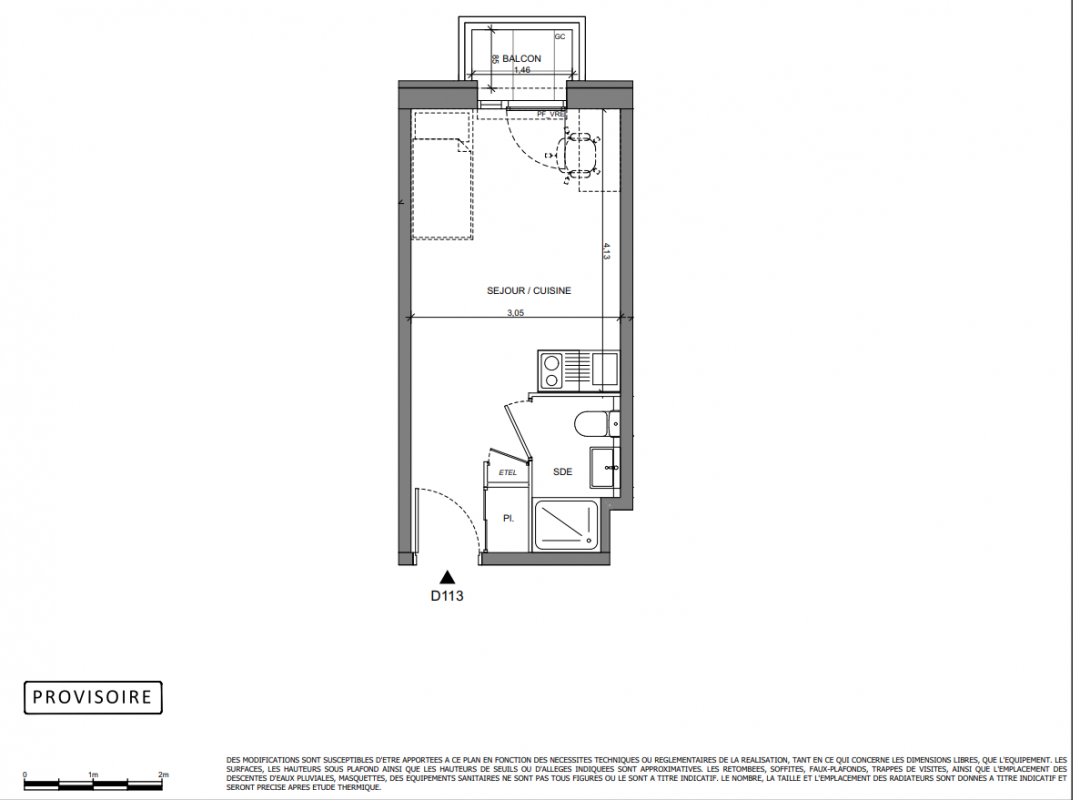
102 480€
Appt. au 1er
Studio
19.03 m²
Nord
Saint-Laurent-du-Var (06700)
3ème trimestre 2028
01 81 80 39 10
Présentation du programme "VIVA MARE Nue Propriété"
Investir en nue-propriété à Saint-Laurent-du-Var, c’est faire le choix d’un placement sécurisé, sans fiscalité ni contraintes de gestion, dans une commune prisée de la Côte d’Azur, à proximité immédiate de Nice.
Viva Mare vous propose une opportunité rare, à deux pas du front de mer, dans un quartier résidentiel en plein renouveau.
Grâce au démembrement temporaire de propriété, vous accédez à un bien immobilier avec une décote immédiate de 39?% sur le prix d’achat. Pendant 16 ans, vous ne supportez aucune charge ni taxe, et la gestion locative est entièrement assurée par l’usufruitier. Un investissement sans contraintes, sans frais supplémentaires, et parfaitement sécurisé.
À l’issue de cette période, vous récupérez automatiquement la pleine propriété du bien, dont la valeur aura naturellement progressé. La plus-value est d’autant plus intéressante que l’acquisition initiale s’est faite à prix réduit, sans imposition spécifique liée à la reconstitution de la pleine propriété.
Ce dispositif est également idéal pour anticiper une donation, en réduisant les droits fiscaux grâce à une base taxable plus faible.
Autres logements Studio du programme "VIVA MARE Nue Propriété"
| Disponibilité | Prix | No | Genre | Pièces | Surface | Étage | Disponibilité | Prix | ||
|---|---|---|---|---|---|---|---|---|---|---|
| Voir | Disponible | 100 650€ | D007 | Appt. | Studio | 21.33m2 | 0-RDC | Disponible | 100 650€ | Voir |
| Voir | Disponible | 87 840€ | D006 | Appt. | Studio | 19.19m2 | 0-RDC | Disponible | 87 840€ | Voir |
| Voir | Optionné | 86 010€ | D005 | Appt. | Studio | 19.17m2 | 0-RDC | Optionné Mais pas encore vendu 😉 | 86 010€ | Voir |
| Voir | Disponible | 88 450€ | D104 | Appt. | Studio | 19.11m2 | 1er | Disponible | 88 450€ | Voir |
| Voir | Disponible | 97 600€ | D105 | Appt. | Studio | 19.09m2 | 1er | Disponible | 97 600€ | Voir |
| Voir | Disponible | 88 450€ | D101 | Appt. | Studio | 19.13m2 | 1er | Disponible | 88 450€ | Voir |
| Voir | Disponible | 103 700€ | D110 | Appt. | Studio | 20.12m2 | 1er | Disponible | 103 700€ | Voir |
| Voir | Optionné | 102 480€ | D114 | Appt. | Studio | 19.03m2 | 1er | Optionné Mais pas encore vendu 😉 | 102 480€ | Voir |
| Voir | Disponible | 106 750€ | D106 | Appt. | Studio | 17.7m2 | 1er | Disponible | 106 750€ | Voir |
| Voir | Disponible | 96 990€ | D108 | Appt. | Studio | 18.91m2 | 1er | Disponible | 96 990€ | Voir |
| Voir | Disponible | 96 380€ | D109 | Appt. | Studio | 18.9m2 | 1er | Disponible | 96 380€ | Voir |
| Voir | Disponible | 84 790€ | D112 | Appt. | Studio | 18.32m2 | 1er | Disponible | 84 790€ | Voir |
| Voir | Disponible | 90 890€ | D204 | Appt. | Studio | 19.11m2 | 2ème | Disponible | 90 890€ | Voir |
| Voir | Disponible | 89 670€ | D214 | Appt. | Studio | 19.03m2 | 2ème | Disponible | 89 670€ | Voir |
| Voir | Disponible | 90 890€ | D201 | Appt. | Studio | 19.13m2 | 2ème | Disponible | 90 890€ | Voir |
| Voir | Disponible | 102 480€ | D212 | Appt. | Studio | 18.32m2 | 2ème | Disponible | 102 480€ | Voir |
| Voir | Disponible | 121 390€ | D210 | Appt. | Studio | 20.12m2 | 2ème | Disponible | 121 390€ | Voir |
| Voir | Disponible | 98 820€ | D209 | Appt. | Studio | 18.9m2 | 2ème | Disponible | 98 820€ | Voir |
| Voir | Disponible | 99 430€ | D208 | Appt. | Studio | 18.91m2 | 2ème | Disponible | 99 430€ | Voir |
| Voir | Disponible | 111 630€ | D207 | Appt. | Studio | 18.13m2 | 2ème | Disponible | 111 630€ | Voir |
| Voir | Optionné | 93 940€ | D206 | Appt. | Studio | 17.7m2 | 2ème | Optionné Mais pas encore vendu 😉 | 93 940€ | Voir |
| Voir | Disponible | 100 040€ | D205 | Appt. | Studio | 19.09m2 | 2ème | Disponible | 100 040€ | Voir |
| Voir | Disponible | 89 670€ | D203 | Appt. | Studio | 18.89m2 | 2ème | Disponible | 89 670€ | Voir |
| Voir | Disponible | 92 110€ | D314 | Appt. | Studio | 19.03m2 | 3ème | Disponible | 92 110€ | Voir |
| Voir | Disponible | 107 360€ | D303 | Appt. | Studio | 18.89m2 | 3ème | Disponible | 107 360€ | Voir |
| Voir | Disponible | 93 330€ | D304 | Appt. | Studio | 19.11m2 | 3ème | Disponible | 93 330€ | Voir |
| Voir | Optionné | 102 480€ | D305 | Appt. | Studio | 19.09m2 | 3ème | Optionné Mais pas encore vendu 😉 | 102 480€ | Voir |
| Voir | Optionné | 111 630€ | D306 | Appt. | Studio | 17.7m2 | 3ème | Optionné Mais pas encore vendu 😉 | 111 630€ | Voir |
| Voir | Disponible | 92 110€ | D302 | Appt. | Studio | 18.79m2 | 3ème | Disponible | 92 110€ | Voir |
| Voir | Disponible | 114 070€ | D307 | Appt. | Studio | 18.13m2 | 3ème | Disponible | 114 070€ | Voir |
| Voir | Disponible | 89 670€ | D312 | Appt. | Studio | 18.32m2 | 3ème | Disponible | 89 670€ | Voir |
| Voir | Disponible | 92 110€ | D313 | Appt. | Studio | 19.03m2 | 3ème | Disponible | 92 110€ | Voir |
| Voir | Disponible | 101 260€ | D309 | Appt. | Studio | 18.9m2 | 3ème | Disponible | 101 260€ | Voir |
| Voir | Disponible | 93 330€ | D301 | Appt. | Studio | 19.13m2 | 3ème | Disponible | 93 330€ | Voir |
| Voir | Disponible | 110 410€ | D414 | Appt. | Studio | 19.03m2 | 4ème | Disponible | 110 410€ | Voir |
| Voir | Disponible | 92 720€ | D412 | Appt. | Studio | 18.32m2 | 4ème | Disponible | 92 720€ | Voir |
| Voir | Disponible | 104 310€ | D409 | Appt. | Studio | 18.9m2 | 4ème | Disponible | 104 310€ | Voir |
| Voir | Disponible | 104 920€ | D408 | Appt. | Studio | 18.91m2 | 4ème | Disponible | 104 920€ | Voir |
| Voir | Disponible | 110 410€ | D413 | Appt. | Studio | 19.03m2 | 4ème | Disponible | 110 410€ | Voir |
| Voir | Optionné | 99 430€ | D406 | Appt. | Studio | 17.7m2 | 4ème | Optionné Mais pas encore vendu 😉 | 99 430€ | Voir |
| Voir | Optionné | 105 530€ | D405 | Appt. | Studio | 19.09m2 | 4ème | Optionné Mais pas encore vendu 😉 | 105 530€ | Voir |
| Voir | Disponible | 111 630€ | D404 | Appt. | Studio | 19.11m2 | 4ème | Disponible | 111 630€ | Voir |
| Voir | Disponible | 110 410€ | D403 | Appt. | Studio | 18.89m2 | 4ème | Disponible | 110 410€ | Voir |
| Voir | Disponible | 110 410€ | D402 | Appt. | Studio | 18.79m2 | 4ème | Disponible | 110 410€ | Voir |
| Voir | Disponible | 111 630€ | D401 | Appt. | Studio | 19.13m2 | 4ème | Disponible | 111 630€ | Voir |
| Voir | Disponible | 98 820€ | D514 | Appt. | Studio | 19.03m2 | 5ème | Disponible | 98 820€ | Voir |
| Voir | Disponible | 98 820€ | D513 | Appt. | Studio | 19.03m2 | 5ème | Disponible | 98 820€ | Voir |
| Voir | Disponible | 108 580€ | D508 | Appt. | Studio | 18.91m2 | 5ème | Disponible | 108 580€ | Voir |
| Voir | Disponible | 107 970€ | D509 | Appt. | Studio | 18.9m2 | 5ème | Disponible | 107 970€ | Voir |
| Voir | Disponible | 96 380€ | D512 | Appt. | Studio | 18.32m2 | 5ème | Disponible | 96 380€ | Voir |
| Voir | Disponible | 105 530€ | D507 | Appt. | Studio | 18.13m2 | 5ème | Disponible | 105 530€ | Voir |
| Voir | Disponible | 115 290€ | D504 | Appt. | Studio | 19.11m2 | 5ème | Disponible | 115 290€ | Voir |
| Voir | Disponible | 98 820€ | D503 | Appt. | Studio | 18.89m2 | 5ème | Disponible | 98 820€ | Voir |
| Voir | Disponible | 98 820€ | D502 | Appt. | Studio | 18.79m2 | 5ème | Disponible | 98 820€ | Voir |
| Voir | Disponible | 115 290€ | D501 | Appt. | Studio | 19.13m2 | 5ème | Disponible | 115 290€ | Voir |
| Voir | Disponible | 101 870€ | D407 | Appt. | Studio | 18.13m2 | 4ème | Disponible | 101 870€ | Voir |
| Voir | Optionné | 103 090€ | D506 | Appt. | Studio | 17.7m2 | 5ème | Optionné Mais pas encore vendu 😉 | 103 090€ | Voir |
| Voir | Disponible | 104 920€ | D202 | Appt. | Studio | 18.79m2 | 2ème | Disponible | 104 920€ | Voir |
| Voir | Disponible | 103 700€ | D115 | Appt. | Studio | 23.28m2 Le bon plan | 1er | Disponible | 103 700€ | Voir |
| Voir | Disponible | 93 330€ | D111 | Appt. | Studio | 20.87m2 | 1er | Disponible | 93 330€ | Voir |
| Voir | Disponible | 121 390€ | D215 | Appt. | Studio | 23.28m2 | 2ème | Disponible | 121 390€ | Voir |
| Voir | Disponible | 95 770€ | D211 | Appt. | Studio | 20.79m2 | 2ème | Disponible | 95 770€ | Voir |
| Voir | Disponible | 123 830€ | D315 | Appt. | Studio | 23.28m2 | 3ème | Disponible | 123 830€ | Voir |
| Voir | Disponible | 111 630€ | D415 | Appt. | Studio | 23.28m2 | 4ème | Disponible | 111 630€ | Voir |
| Voir | Disponible | 104 920€ | D511 | Appt. | Studio | 20.87m2 | 5ème | Disponible | 104 920€ | Voir |
| Voir | Disponible | 130 540€ | D515 | Appt. | Studio | 23.28m2 | 5ème | Disponible | 130 540€ | Voir |
| Voir | Disponible | 111 630€ | D410 | Appt. | Studio | 20.12m2 | 4ème | Disponible | 111 630€ | Voir |