Prix
315 000€
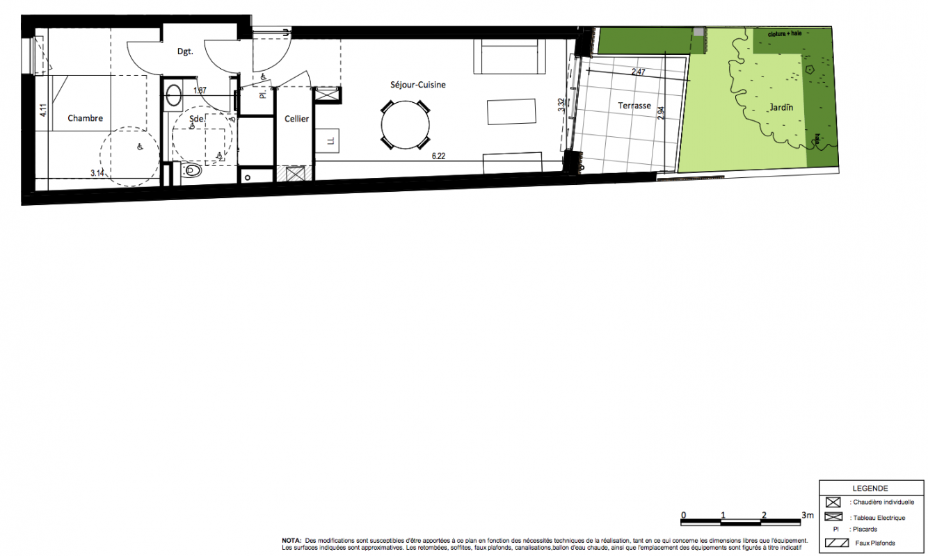
Type
Appt. au 0-RDC
Pièces
T2
Surface
48.3 m²
Exposition
-
Ville
Saint-Nazaire (44600)
Livraison
1er trimestre 2025
Informations
01 81 80 39 10

Présentation du programme "RESIDENCE LE 65"

Nouveau programme immobilier à Saint-Nazaire – Vue mer exceptionnelleDécouvrez Le 65 , une résidence intimiste et haut de gamme située sur le prestigieux boulevard Albert 1er , face à l'océan. Avec son emplacement unique et ses prestations de standing, cette résidence est une opportunité rare pour profiter d'un cadre de vie exceptionnel à Saint-Nazaire.Un programme immobilier d'exceptionLe 65 propose seulement 8 appartements exclusifs, du T2 au T4 , conçus pour répondre aux attentes les plus exigeantes. Chaque logement a été pensé pour allier confort, modernité et bien-être, dans un environnement d'une qualité remarquable.Les atouts de la Résidence Le 65 :Vue imprenable sur l'océan depuis chaque appartement, pour un empreint quotidien de sérénité et de beauté.Ascenseur , garantissant un accès facile et pratique à tous les étages.Sécurité renforcée avec visiophone, pour vivre en toute tranquillité.Isolation acoustique optimale grâce à une chape isophonique, offrant un calme absolu.Chauffage au sol basse température , pour un confort thermique doux et agréable.Respect des normes RE2020 , assurant une excellente performance énergétique et une conception respectueuse de l'environnement.Finitions et matériaux haut de gamme , synonymes de durabilité et de raffinement.Un emplacement idéalSituée face à l'océan, la résidence Le 65 bénéficie d'une localisation privilégiée, à proximité immédiate des commerces, des services et des loisirs. Que ce soit pour une balade en face de mer ou un accès rapide aux commodités, tout est à portée de main.Pourquoi Choisir Le 65 ?Exclusivité : Seulement 8 appartements dans une résidence à taille humaine.Prestige : Une vue exceptionnelle et des prestations de grande qualité.Accessibilité : Proche des commerces, services et activités de loisirs.Investissement pérenne : Un bien unique, alliant confort, emplacement et valeur patrimoniale.Ne laissez pas passer cette opportunité unique !Pour plus d'informations ou pour organiser une visite, contactez-nous dès aujourd'hui. Le 65 , votre nouveau lieu de vie d'exception à Saint-Nazaire, vous attendez.

Autres logements T2 du programme "RESIDENCE LE 65"

Pas de logements disponibles
DO NOT CLICK