242 000€
Appt. au 0-RDC
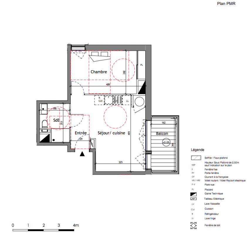
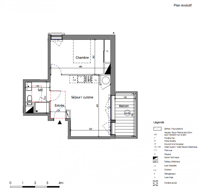
T2
39.12 m²
-
Saint-Brevin-les-Pins (44250)
4ème trimestre 2028
01 81 80 39 10
Présentation du programme "Cottage Océan"
Des appartements neufs à Saint-Brevin-les-Pins
Découvrez COTTAGE OCÉAN, la nouvelle résidence neuve de Vianova située à Saint-Brevin-les-Pins, en Loire-Atlantique. Nichée sur la côte de Jade, à seulement 3 minutes à pied de l’océan et des commerces, la résidence bénéficie d’un emplacement privilégié dans un environnement naturel, calme et arboré. Saint-Brevin-les-Pins, commune dynamique du littoral atlantique, séduit par sa qualité de vie, ses plages de sable fin, ses forêts de pins et sa proximité immédiate avec la ville de Saint-Nazaire et l’agglomération nantaise.
La commune est accessible en moins d’une heure* de Nantes par la route ou le train, via la gare de Saint-Nazaire située à une quinzaine de kilomètres.
Un programme immobilier à taille humaine
La résidence COTTAGE OCÉAN propose 17 appartements neufs, du 2 au 3 pièces, tous prolongés par de beaux extérieurs – balcons, terrasses ou jardins privatifs – offrant un cadre de vie paisible à deux pas de l’océan.
Un soin particulier a été apporté à l’architecture et à l’intégration paysagère. Le projet respecte les dernières normes environnementales et sera certifié RE2020, garantissant confort thermique, performance énergétique et qualité de construction.
*source Google Maps. Temps indicatifs.
Promoteur national reconnu et implanté en région depuis plus de 25 ans, Vianova vous accompagne dans votre projet de résidence principale ou d’investissement locatif en VEFA à Saint-Brevin-les-Pins. N’attendez plus pour découvrir la résidence COTTAGE OCÉAN, un lieu de vie entre mer et nature.
Autres logements T2 du programme "Cottage Océan"
| Disponibilité | Prix | No | Genre | Pièces | Surface | Étage | Disponibilité | Prix | ||
|---|---|---|---|---|---|---|---|---|---|---|
| Voir | Disponible | 239 000€ | C102 | Appt. | T2 | 39.12m2 | 0-RDC | Disponible | 239 000€ | Voir |
| Voir | Disponible | 243 000€ | C301 | Appt. | T2 | 39.79m2 | 0-RDC | Disponible | 243 000€ | Voir |
| Voir | Disponible | 252 000€ | C203 | Appt. | T2 | 43.05m2 | 0-RDC | Disponible | 252 000€ | Voir |
| Voir | Disponible | 235 000€ | C001 | Appt. | T2 | 39.79m2 Le bon plan | 0-RDC | Disponible | 235 000€ | Voir |
| Voir | Disponible | 240 000€ | C201 | Appt. | T2 | 39.79m2 | 0-RDC | Disponible | 240 000€ | Voir |
| Voir | Disponible | 237 000€ | C101 | Appt. | T2 | 39.79m2 | 0-RDC | Disponible | 237 000€ | Voir |
| Voir | Disponible | 245 000€ | C302 | Appt. | T2 | 39.12m2 | 0-RDC | Disponible | 245 000€ | Voir |
| Voir | Disponible | 248 000€ | C003 | Appt. | T2 | 43.02m2 | 0-RDC | Disponible | 248 000€ | Voir |
| Voir | Disponible | 250 000€ | C103 | Appt. | T2 | 43.01m2 | 0-RDC | Disponible | 250 000€ | Voir |

