303 697€ (TVA 20%)
267 000€ (TVA 5.5%)
Appt. au 3ème
-
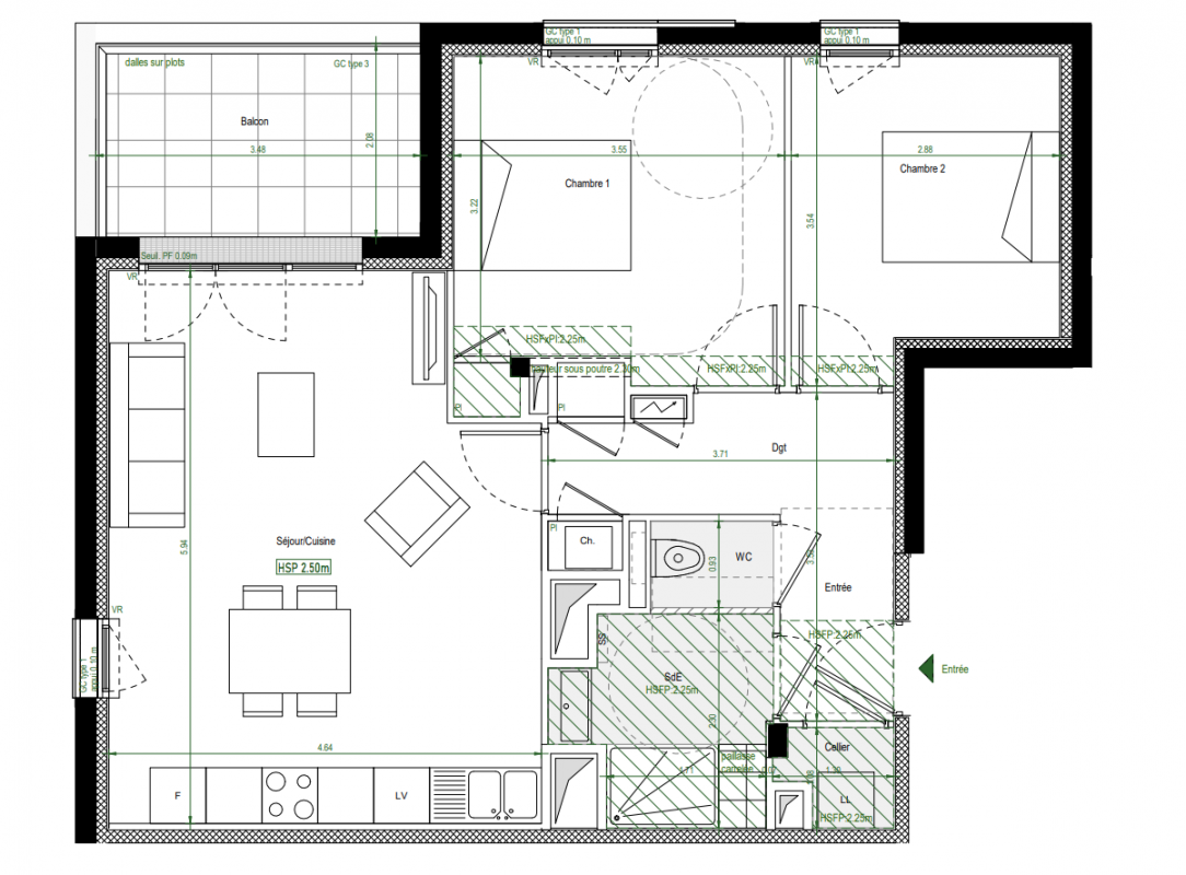
62.5 m²
Nord-Est
Nantes (44000)
4ème trimestre 2026
01 81 80 39 10
Présentation du programme "Courtil Le Mevel"
Découvrez une résidence implantée au cœur d’un véritable havre de paix et parsemée de venelles piétonnes qui mènent à un cœur d’îlot arboré. La résidence propose des appartements confortables du 2 au 5 pièces et des maisons de ville de 4 et 5 pièces. Les séjours des appartements baignés de lumière sont tous prolongés par des balcons, des terrasses, dont certaines plein-ciel, et des jardins privatifs. Les maisons bénéficient toutes de jardins.. Des places de stationnement en sous-sol complètent l’offre qualitative de cette belle résidence entièrement sécurisée.Bordé par la Loire et la Sèvre nantaise, le quartier Saint-Jacques est recherché pour son calme, ses nombreux espaces verts et son esprit de village. Situés dans les rues alentour à moins de 5 minutes à pied de la résidence, vous trouverez une école primaire et maternelle, des commerces, un petit supermarché, l’annexe de la mairie, la Poste, une banque, le gymnase Gobelets Ripossière qui propose des activités sportives variées, le superbe parc de la Crapaudine, ses potagers collectifs, ses mares et ses larges pelouses ombragées ainsi que de nombreuses lignes de bus pour parcourir la ville. Le Cinéma Bonne Garde, le marché de produits frais de la place Pirmil ouvert tous les mercredis matin et l’Hôpital Saint-Jacques sont situés quant à eux à une dizaine de minutes de marche.
Autres logements - du programme "Courtil Le Mevel"
| Disponibilité | Prix | No | Genre | Pièces | Surface | Étage | Disponibilité | Prix | ||
|---|---|---|---|---|---|---|---|---|---|---|
| Voir | Disponible | 238 863€ | A403 | Appt. | - | 44.4m2 | 4ème | Disponible | 238 863€ | Voir |
| Voir | Disponible | 294 597€ | A102 | Appt. | - | 62.9m2 | 1er | Disponible | 294 597€ | Voir |
| Voir | Disponible | 216 114€ | A001 | Appt. | - | 41.6m2 | 0-RDC | Disponible | 216 114€ | Voir |
| Voir | Disponible | 441 327€ | A401 | Appt. | - | 79.9m2 | 4ème | Disponible | 441 327€ | Voir |
| Voir | Optionné | 427 678€ | C004 | Appt. | - | 92.7m2 | 0-RDC | Optionné Mais pas encore vendu 😉 | 427 678€ | Voir |
| Voir | Disponible | 428 588€ | C002 | Appt. | - | 92.1m2 | 0-RDC | Disponible | 428 588€ | Voir |
| Voir | Disponible | 294 597€ | A107 | Appt. | - | 62.5m2 | 1er | Disponible | 294 597€ | Voir |
| Voir | Optionné | 425 403€ | A402 | Appt. | - | 77.8m2 | 4ème | Optionné Mais pas encore vendu 😉 | 425 403€ | Voir |