Prix
367 000€
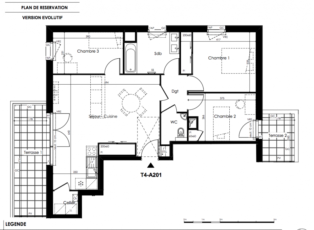
Type
Appt. au 2ème
Pièces
T4
Surface
76.73 m²
Exposition
-
Ville
Basse-Goulaine (44115)
Livraison
1er trimestre 2026
Informations
01 81 80 39 10

Présentation du programme "VILLA ANDREA"

[ APPARTEMENT DÉCORÉ À VISITER ] Venez visiter notre appartement témoin décoré et projetez-vous dans votre futur appartement !
Les derniers appartements disponibles de 3 ou 4 pièces proposent tous de beaux espaces intérieurs pour un confort quotidien et offrent des balcons ou des terrasses invitant à profiter de la lumière naturelle et des paysages verdoyants qui entourent la résidence.
Idéalement située à quelques pas du centre de BASSE-GOULAINE, vous profiterez de la proximité immédiate des commerces et services.
Un véritable havre de paix pour ceux en quête de sérénité dans un cadre privilégié.
SPÉCIAL INVESTISSEURS – Profitez du nouveau Dispositif JEANBRUN : optimisez votre fiscalité et accélérez votre patrimoine.
Retrouvez nos conseillers pour échanger sur vos projets immobiliers, découvrir notre appartement décoré au sein de la résidence et profiter de ces dernières opportunités à Basse-Goulaine !

Autres logements T4 du programme "VILLA ANDREA"

Disponibilité Prix Genre Pièces Surface Étage
Voir
Disponible
377 000€ Appt. T4 81.08m2 1er
DO NOT CLICK