92 472€
Appt. au 0-RDC
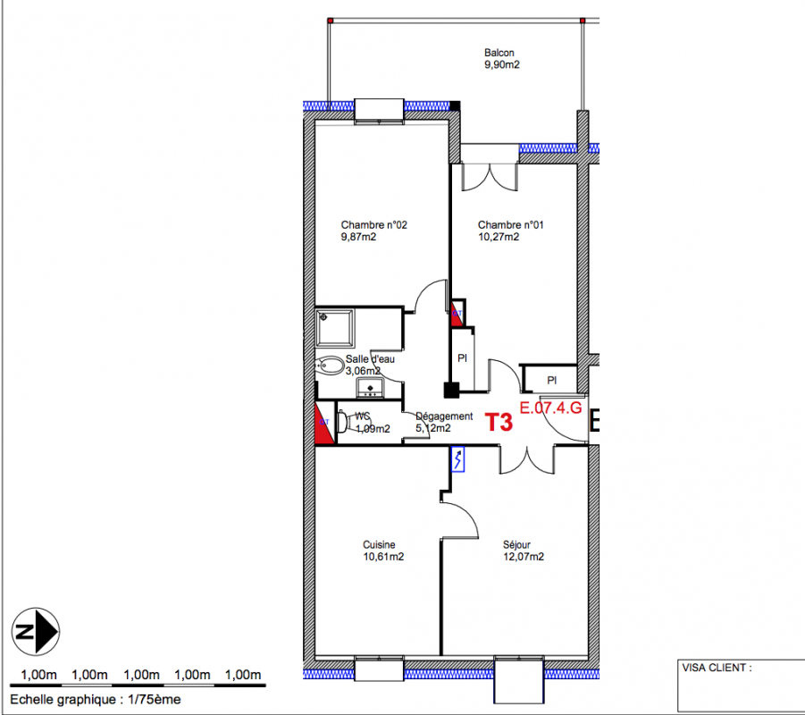
T3
52.7 m²
Est
Perpignan (66000)
1er trimestre 2027
01 81 80 39 10
Présentation du programme "Les Albères"
La résidence « Les Albères » se situe en centre-ville dans un des 9 quartiers prioritaires et bénéficie de tous les avantages des commerces et services de proximité :
- Pharmacie, poste, banque
- Crèche, écoles, lycée
- Commerces de bouche
- Parc, stade, cinéma, théâtre...
Les immeubles ont été construits en 1960 et bénéficient d'une belle réhabilitation, avec notamment, le changement des menuiseries, la création de balcons, la remise aux normes électriques, la remise en état des peintures, sols, le réaménagements des cuisines et salle de bain.
L'objectif d'une telle rénovation est la performance énergétique mais aussi l'amélioration du confort des logements.
Ils disposeront tous d'une place de parking privée, d'une cave et d'un balcon ainsi que des espaces communs (jardin paysager et une aire de jeux pour enfants en ilot central).
Autres logements T3 du programme "Les Albères"
| Disponibilité | Prix | No | Genre | Pièces | Surface | Étage | Disponibilité | Prix | ||
|---|---|---|---|---|---|---|---|---|---|---|
| Voir | Optionné | 82 974€ | F.03.3.G | Appt. | T3 | 52.2m2 Le bon plan | 0-RDC | Optionné Mais pas encore vendu 😉 | 82 974€ | Voir |
| Voir | Disponible | 88 321€ | F.03.4.G | Appt. | T3 | 52.2m2 | 0-RDC | Disponible | 88 321€ | Voir |
| Voir | Disponible | 98 491€ | F.03.5.G | Appt. | T3 | 52.2m2 | 0-RDC | Disponible | 98 491€ | Voir |