Prix
398 000€
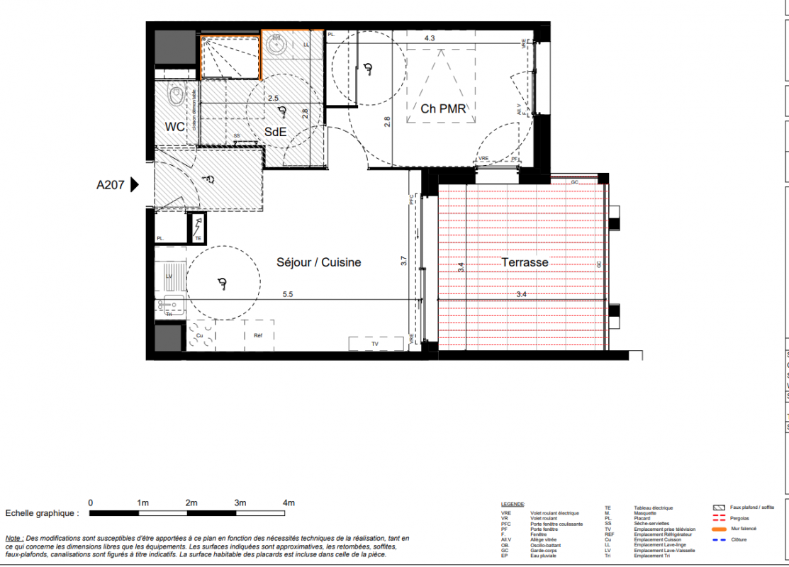
Type
Appt. au 2ème
Pièces
T2
Surface
40.2 m²
Exposition
Nord
Ville
La Grande-Motte (34280)
Livraison
2ème trimestre 2026
Informations
01 81 80 39 10

Présentation du programme "CARRE SAPHIR"

Station balnéaire renommée, la Grande Motte offre un cadre de vie recherché à 20 min de Montpellier. Ses plages côtoient une nature exceptionnellement riche. C’est une ville dynamique de 8000 habitants, équipée de nombreuses infrastructures sportives et culturelles. Des établissements scolaires accueillent vos enfants de la petite enfance au lycée.
La résidence carré saphir offre un emplacement de premier choix et propose 50 logements du 2 au 4 pièces offrant de beaux volumes et de belles orientations. Les espaces de vie se prolongent tous vers l’extérieur par une agréable loggia ou un jardin privatif clôturé à l’abri des regards. Les prestations sont pensées dans les moindres détails pour vous garantir confort et plaisir d’habiter. Pour chauffer ou refroidir l’habitation mais aussi pour la production de l’eau chaude sanitaire, la solution de la géothermie a été retenue et permet de couvrir une partie des besoins en énergie. Carré saphir, c’est l’opportunité de devenir propriétaire d’un appartement de standing dans un cadre recherché.

Autres logements T2 du programme "CARRE SAPHIR"

Disponibilité Prix Genre Pièces Surface Étage
Voir
Disponible
398 000€ Appt. T2 40.2m2 2ème
DO NOT CLICK