397 000€
Appt. au 2ème
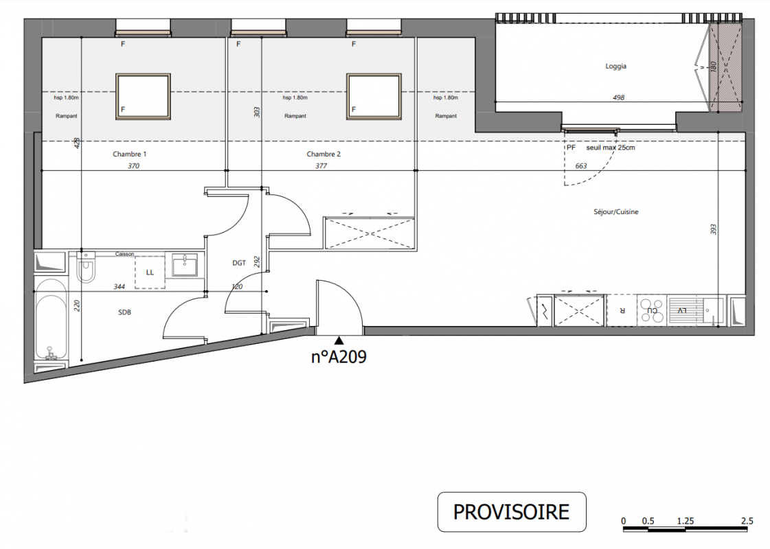
T3
65.14 m²
Nord
Loudenvielle (65510)
1er trimestre 2028
01 81 80 39 10
Présentation du programme "Programme neuf Loudenvielle (65510)"
Et si votre refuge à la montagne devenait aussi un investissement malin ? Profitez d'une rentabilité jusqu'à 7%*. Appartements neufs avec vues lac et montagnes !Du 2 au 4 pièces, découvrez nos appartements neufs spacieux et lumineux, prolongés pour la plupart par de belles loggias offrant une vue imprenable sur le lac et les montagnes.Profitez de prestations de standing rares dans la commune : local à vélos, local à skis, caves, ainsi qu'un stationnement sécurisé en sous-sol pour l'ensemble des logements. De futurs commerces de proximité (boulangerie, producteurs locaux...) viendront compléter le confort au quotidien. Inspirée de l'architecture traditionnelle pyrénéenne, la résidence mêle harmonieusement ardoise, pierre et bois, s'intégrant parfaitement dans le paysage typique de Loudenvielle. Idéalement située à deux pas des thermes de Balnéa, du lac, du cinéma, des écoles, des commerces et du télécabine Skyvall, qui relie la station de Peyragudes en moins de 10 minutes. Nichée au cœur de la vallée du Louron, entre les stations de Peyragudes et Val Louron, Loudenvielle est une destination quatre saisons : ski, randonnée, vélo, sports nautiques ou détente aux thermes... chacun y trouve son bonheur, été comme hiver. Contactez vite un de nos conseillers pour découvrir tous nos appartements neufs à Loudenvielle et concrétiser votre projet immobilier !
Autres logements T3 du programme "Programme neuf Loudenvielle (65510)"
| Disponibilité | Prix | No | Genre | Pièces | Surface | Étage | Disponibilité | Prix | ||
|---|---|---|---|---|---|---|---|---|---|---|
| Voir | Disponible | 396 000€ | A005 | Appt. | T3 | 68.66m2 | 0-RDC | Disponible | 396 000€ | Voir |
| Voir | Disponible | 398 000€ | A111 | Appt. | T3 | 72.62m2 Le bon plan | 1er | Disponible | 398 000€ | Voir |
| Voir | Disponible | 418 000€ | A112 | Appt. | T3 | 69.07m2 | 1er | Disponible | 418 000€ | Voir |
| Voir | Disponible | 395 000€ | A202 | Appt. | T3 | 60.49m2 | 2ème | Disponible | 395 000€ | Voir |
| Voir | Disponible | 508 000€ | A208 | Appt. | T3 | 82.37m2 | 2ème | Disponible | 508 000€ | Voir |
| Voir | Disponible | 372 000€ | B004 | Appt. | T3 | 63.6m2 | 0-RDC | Disponible | 372 000€ | Voir |
| Voir | Disponible | 455 000€ | B101 | Appt. | T3 | 76.13m2 | 1er | Disponible | 455 000€ | Voir |
| Voir | Disponible | 395 000€ | B104 | Appt. | T3 | 63.09m2 | 1er | Disponible | 395 000€ | Voir |