Prix
850 000€
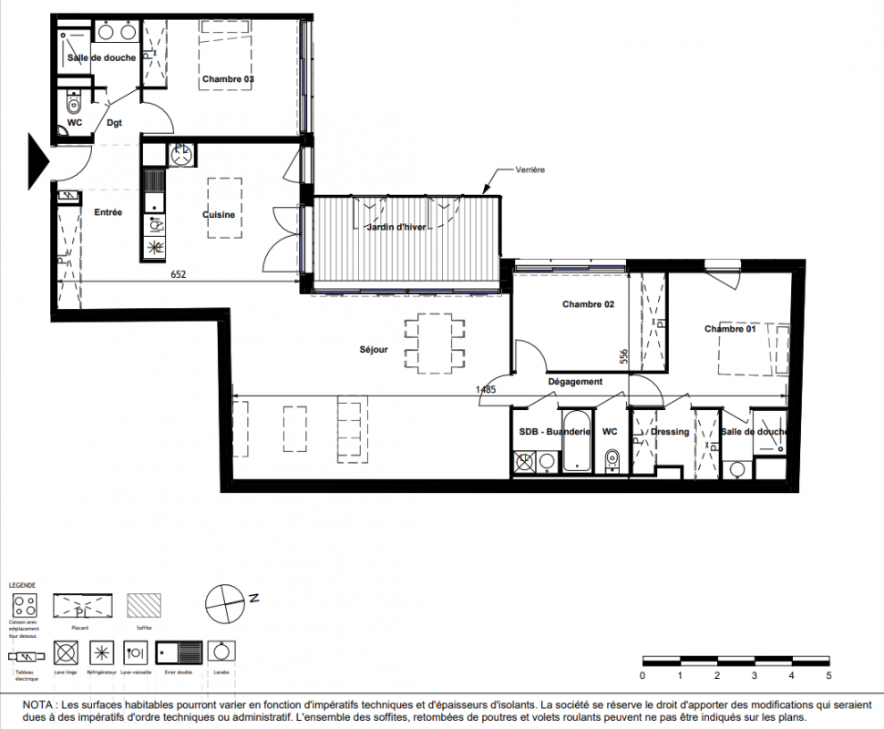
Type
Appt. au 2ème
Pièces
T4
Surface
123.3 m²
Exposition
-
Ville
Toulouse (31000)
Livraison
3ème trimestre 2027
Informations
01 81 80 39 10

Présentation du programme "PRELUDE"

La résidence Prélude propose une opportunité rare en plein centre de Toulouse, dans le secteur très recherché Place Dupuy / Halle aux Grains, à proximité immédiate du Canal du Midi et du métro François Verdier.

Ce programme intimiste se compose de 11 appartements seulement, du 2 au 4 pièces, avec terrasses ou jardins d'hiver, au sein d'une résidence de standing développée en coeur d'îlot. L'architecture, inspirée des immeubles haussmanniens des boulevards toulousains, associe pierre, brique et enduits clairs, offrant un positionnement patrimonial qualitatif.

Les logements proposent des plans lumineux avec de larges ouvertures, des chambres spacieuses, certaines avec dressing et salle de bain privative. La résidence est équipée d'un ascenseur et de stationnements privatifs couverts, éléments particulièrement recherchés en hypercentre.

L'emplacement bénéficie d'un environnement premium à proximité immédiate de la rue Croix-Baragnon, de la place Saint-Georges, des marchés Victor Hugo et Carmes, ainsi que des Jardins Royal et Grand Rond.

Grâce à sa rareté en hypercentre, sa taille confidentielle et son architecture de caractère, la résidence Prélude présente un fort potentiel patrimonial et s'adresse aussi bien à une clientèle en résidence principale qu'à des investisseurs recherchant un bien de centre-ville durable et valorisant.

Autres logements T4 du programme "PRELUDE"

Disponibilité Prix Genre Pièces Surface Étage
Voir
Disponible
790 000€ Appt. T4 123.3m2 1er
Voir
Disponible
910 000€ Appt. T4 123.3m2 3ème
DO NOT CLICK