Prix
299 700€
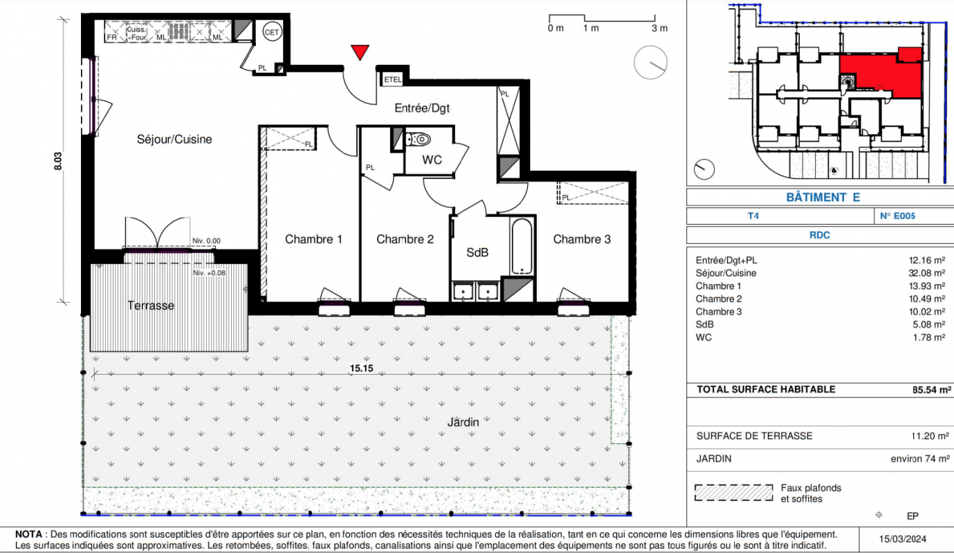
Type
Appt. au 0-RDC
Pièces
T4
Surface
85.54 m²
Le bon plan
Exposition
Nord-Est
Ville
Aucamville (31140)
Livraison
3ème trimestre 2027
Informations
01 81 80 39 10

Présentation du programme "RESIDENCE MAZUREVA"

Programme neuf AUCAMVILLE (31140). Prenez contact avec Vianova pour plus d'informations!

Autres logements T4 du programme "RESIDENCE MAZUREVA"

Disponibilité Prix Genre Pièces Surface Étage
Voir
Disponible
299 700€ Appt. T4 85.54m2 0-RDC
Voir
Disponible
298 800€ Appt. T4 85.62m2 1er
DO NOT CLICK