Prix
820 000€
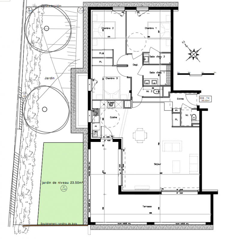
Type
Appt. au 0-RDC
Pièces
T4
Surface
98.45 m²
Exposition
Sud
Ville
Capbreton (40130)
Livraison
3ème trimestre 2026
Informations
01 81 80 39 10

Présentation du programme "BAÏNA"

JOURNEES PORTES OUVERTES LES 24 et 25 AVRIL ! OFFRE EXCEPTIONNELLE : Profitez de 2000€ de remise par pièce et des Frais de Notaire OFFERTS ! Démarrage travaux. Au bord de l’Océan Atlantique, Capbreton séduit par son port pittoresque, son centre dynamique et ses plages de sable fin. La résidence BAÏNA bénéficie d’une localisation de choix, à deux pas de la plage du Santocha et du centre-ville. Elle profite de la quiétude d’un charmant quartier résidentiel. BAÏNA, à l’architecture élégante, empreinte d’influences landaises, propose une collection d’appartements du 2 au 5 pièces aux beaux volumes et aux prestations raffinées. Chaque logement dispose d’un espace extérieur, offrant ainsi une extension naturelle à votre habitat. Pour votre confort, l’ensemble des appartements dispose d’une place de parking sécurisée attirée. N’attendez plus pour obtenir plus d’informations !

Autres logements T4 du programme "BAÏNA"

Disponibilité Prix Genre Pièces Surface Étage
Voir
Disponible
805 000€ Appt. T4 98.43m2 1er
Voir
Disponible
800 000€ Appt. T4 96.62m2 2ème
DO NOT CLICK