Prix
229 000€  (TVA 20%)
209 917€  (TVA 10%)
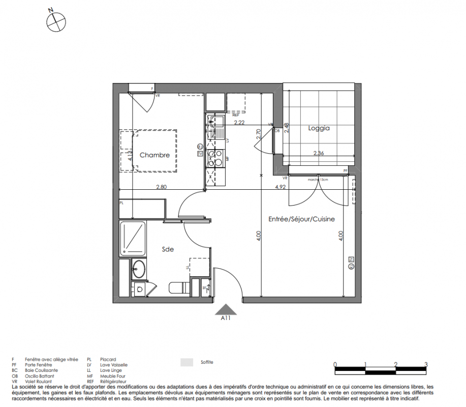
Type
Maison au 1er
Pièces
T2
Surface
42.83 m²
Exposition
-
Ville
Saint-Médard-en-Jalles (33160)
Livraison
2ème trimestre 2026
Informations
01 81 80 39 10

Présentation du programme "Abbey Road"

Autres logements T2 du programme "Abbey Road"

Disponibilité Prix Genre Pièces Surface Étage
Voir
Disponible
246 000€ Maison T2 47.2m2 1er
Voir
Disponible
251 000€ Maison T2 47.2m2 2ème
DO NOT CLICK