101 232€ (TVA 20%)
89 000€ (TVA 5.5%)
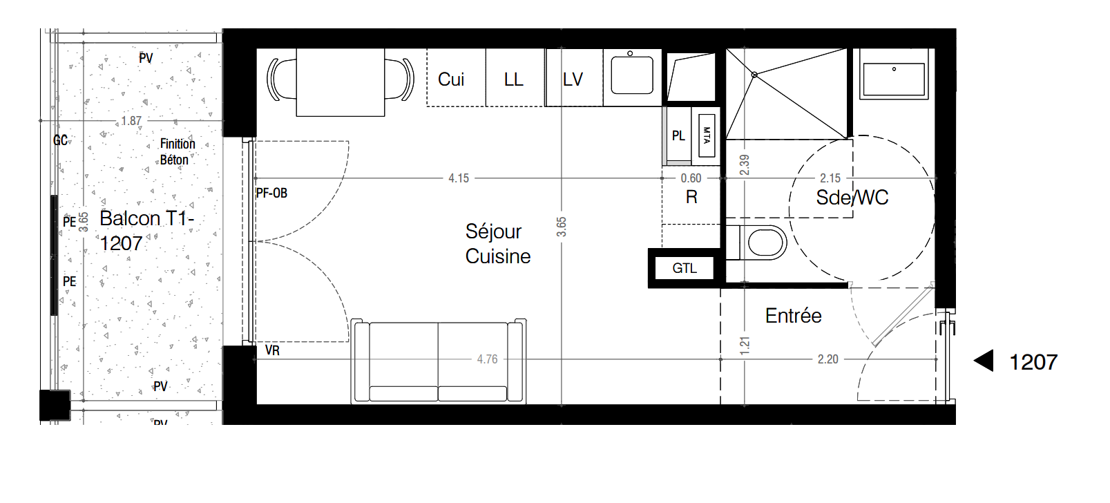
Appt. au 2ème
-
24.3 m²
Sud-Est
Lormont (33310)
3ème trimestre 2027
01 81 80 39 10
Présentation du programme "Belle Rive"
Découvrez Belle Rive, une nouvelle résidence éligible à la TVA réduite (sous conditions de revenus). Un cadre de vie serein, verdoyant et connecté, aux portes de Bordeaux. Lormont, l’équilibre parfait entre nature et ville Située sur la rive droite de la Garonne, Lormont séduit par son cadre naturel privilégié, avec le parc de l’Ermitage, ses vues panoramiques sur Bordeaux, et son dynamisme urbain. En plein renouveau, la ville bénéficie d’un excellent réseau de transports, de nombreux commerces, d’équipements scolaires et culturels, offrant une qualité de vie idéale pour les familles comme pour les jeunes actifs. Belle Rive, 2 adresses pour 2 modes de vie Dans le quartier Carriet Coeur Vert / Mireport, autour du Parc des Côteaux, Belle Rive propose une offre de logements variée, adaptée à tous les styles de vie : • Une petite résidence de 38 appartements du studio au 5 pièces, à l'angle des rues Camile Jullian et Paul Courtault • 10 maisons de 3, 4 ou 5 pièces, situées au 16 rue Nicolas Beaujon. Une adresse offrant des vues sur la Garonne. Répartis sur l'une ou l'autre des deux adresses, distantes de 300 mètres, les logements ..., les logements disposent tous de beaux espaces extérieurs privatifs, avec en moyenne 23 m² de terrasse, balcon ou jardin. Une accessibilité optimale • Tramway A arrêt Carriet, à 6 minutes à pied : rejoignez le centre de Bordeaux en 30 minutes • Accès rapide à la rocade, au point d’Aquitaine et aux grands axes • Commodités à deux pas : commerces, écoles maternelle et primaire Romain Rolland & Paul Fort, services
Autres logements - du programme "Belle Rive"
| Disponibilité | Prix | No | Genre | Pièces | Surface | Étage | Disponibilité | Prix | ||
|---|---|---|---|---|---|---|---|---|---|---|
| Voir | Disponible | 326 445€ | 1604 | Appt. | - | 79.3m2 | 6ème | Disponible | 326 445€ | Voir |
| Voir | Disponible | 327 583€ | 1603 | Appt. | - | 78.7m2 | 6ème | Disponible | 327 583€ | Voir |
| Voir | Disponible | 229 763€ | 1105 | Appt. | - | 62.5m2 | 1er | Disponible | 229 763€ | Voir |
| Voir | Disponible | 259 336€ | 1206 | Appt. | - | 63.1m2 | 2ème | Disponible | 259 336€ | Voir |
| Voir | Disponible | 327 583€ | 1602 | Appt. | - | 78.6m2 | 6ème | Disponible | 327 583€ | Voir |