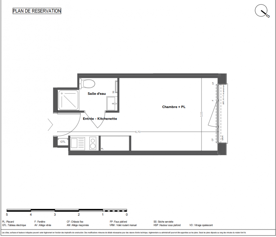
154 000€
Appt. au 3ème
Studio
18.95 m²
-
Bordeaux (33000)
3ème trimestre 2027
01 81 80 39 10
Présentation du programme "KLEEZI | THIERS BORDEAUX"
[ SPÉCIAL INVESTISSEURS ] – BORDEAUX – AVENUE THIERS – Découvrez KLEEZI I BORDEAUX THIERS, une résidence étudiante et jeunes actifs haut de gamme, idéalement située avenue Thiers, au cœur du quartier prisé et en pleine transformation de La Bastide. Ce programme immobilier neuf associe prestations soignées, emplacement stratégique et potentiel locatif solide, constituant une opportunité pertinente de placement en LMNP pour sécuriser et diversifier votre patrimoine.
KLEEZI I BORDEAUX THIERS repense le logement étudiant avec des espaces modernes, meublés et aménagés avec soin, conçus pour le confort et le bien-être des résidents, tout en s’inscrivant pleinement dans la vie du quartier. Un cadre de vie qualitatif, en adéquation avec les attentes actuelles des étudiants et jeunes actifs.
Avec plus de 100 000 étudiants et un marché locatif particulièrement tendu, Bordeaux s’impose comme une place universitaire de premier plan. La résidence bénéficie d’une adresse recherchée, à proximité des universités, des commerces et des transports en commun, favorisant un taux d’occupation élevé et une rentabilité optimisée pour les investisseurs.
Avec le PACK LAMOTTE, vous bénéficiez :
> d’un mobilier entièrement fourni,
> d’une gestion locative et comptable sur mesure**,
> d’un accompagnement bancaire pour vos solutions de financement.
Une opportunité d’investissement structurée dans un secteur durablement porteur.
* Voir les conditions sur la page Mentions légales de notre site Vianova.fr
** Gestion comptable par un cabinet offerte la première année.
Contactez dès maintenant nos conseillers Lamotte à BRUGES ou rendez-vous sur LAMOTTE.FR pour en savoir plus.
* Voir les conditions sur la page mentions légales de notre site Vianova.fr
** Gestion comptable par un cabinet offerte la première année.
Autres logements Studio du programme "KLEEZI | THIERS BORDEAUX"
| Disponibilité | Prix | No | Genre | Pièces | Surface | Étage | Disponibilité | Prix | ||
|---|---|---|---|---|---|---|---|---|---|---|
| Voir | Disponible | 147 000€ | 001 | Appt. | Studio | 18.47m2 | 0-RDC | Disponible | 147 000€ | Voir |
| Voir | Disponible | 147 600€ | 003 | Appt. | Studio | 18.32m2 | 0-RDC | Disponible | 147 600€ | Voir |
| Voir | Disponible | 147 200€ | 004 | Appt. | Studio | 18.47m2 | 0-RDC | Disponible | 147 200€ | Voir |
| Voir | Disponible | 145 100€ | 012 | Appt. | Studio | 19.91m2 | 0-RDC | Disponible | 145 100€ | Voir |
| Voir | Disponible | 149 200€ | 101 | Appt. | Studio | 18.47m2 | 1er | Disponible | 149 200€ | Voir |
| Voir | Disponible | 151 200€ | 102 | Appt. | Studio | 18.95m2 | 1er | Disponible | 151 200€ | Voir |
| Voir | Disponible | 152 500€ | 109 | Appt. | Studio | 18.95m2 | 1er | Disponible | 152 500€ | Voir |
| Voir | Disponible | 152 500€ | 110 | Appt. | Studio | 18.95m2 | 1er | Disponible | 152 500€ | Voir |
| Voir | Disponible | 152 500€ | 114 | Appt. | Studio | 18.69m2 | 1er | Disponible | 152 500€ | Voir |
| Voir | Disponible | 152 500€ | 115 | Appt. | Studio | 18.95m2 | 1er | Disponible | 152 500€ | Voir |
| Voir | Disponible | 152 500€ | 116 | Appt. | Studio | 18.95m2 | 1er | Disponible | 152 500€ | Voir |
| Voir | Disponible | 150 600€ | 203 | Appt. | Studio | 18.32m2 | 2ème | Disponible | 150 600€ | Voir |
| Voir | Disponible | 156 500€ | 208 | Appt. | Studio | 18.32m2 | 2ème | Disponible | 156 500€ | Voir |
| Voir | Disponible | 153 500€ | 210 | Appt. | Studio | 18.95m2 | 2ème | Disponible | 153 500€ | Voir |
| Voir | Disponible | 153 500€ | 215 | Appt. | Studio | 18.95m2 | 2ème | Disponible | 153 500€ | Voir |
| Voir | Disponible | 153 000€ | 216 | Appt. | Studio | 18.95m2 | 2ème | Disponible | 153 000€ | Voir |
| Voir | Disponible | 189 500€ | 218 | Appt. | Studio | 19.19m2 | 2ème | Disponible | 189 500€ | Voir |
| Voir | Disponible | 157 000€ | 308 | Appt. | Studio | 18.32m2 | 3ème | Disponible | 157 000€ | Voir |
| Voir | Disponible | 154 000€ | 309 | Appt. | Studio | 18.95m2 | 3ème | Disponible | 154 000€ | Voir |
| Voir | Disponible | 154 000€ | 310 | Appt. | Studio | 18.95m2 | 3ème | Disponible | 154 000€ | Voir |
| Voir | Disponible | 151 800€ | 312 | Appt. | Studio | 18.47m2 | 3ème | Disponible | 151 800€ | Voir |
| Voir | Disponible | 151 800€ | 313 | Appt. | Studio | 18.59m2 | 3ème | Disponible | 151 800€ | Voir |
| Voir | Disponible | 154 000€ | 314 | Appt. | Studio | 18.69m2 | 3ème | Disponible | 154 000€ | Voir |
| Voir | Disponible | 154 000€ | 316 | Appt. | Studio | 18.95m2 | 3ème | Disponible | 154 000€ | Voir |
| Voir | Disponible | 150 100€ | 321 | Appt. | Studio | 19.91m2 | 3ème | Disponible | 150 100€ | Voir |
| Voir | Disponible | 151 700€ | 401 | Appt. | Studio | 18.47m2 | 4ème | Disponible | 151 700€ | Voir |
| Voir | Disponible | 153 700€ | 402 | Appt. | Studio | 18.95m2 | 4ème | Disponible | 153 700€ | Voir |
| Voir | Disponible | 152 100€ | 403 | Appt. | Studio | 18.32m2 | 4ème | Disponible | 152 100€ | Voir |
| Voir | Disponible | 151 700€ | 404 | Appt. | Studio | 18.47m2 | 4ème | Disponible | 151 700€ | Voir |
| Voir | Disponible | 151 700€ | 405 | Appt. | Studio | 18.95m2 | 4ème | Disponible | 151 700€ | Voir |
| Voir | Disponible | 158 000€ | 406 | Appt. | Studio | 18.32m2 | 4ème | Disponible | 158 000€ | Voir |
| Voir | Disponible | 155 000€ | 407 | Appt. | Studio | 18.95m2 | 4ème | Disponible | 155 000€ | Voir |
| Voir | Disponible | 155 000€ | 408 | Appt. | Studio | 18.95m2 | 4ème | Disponible | 155 000€ | Voir |
| Voir | Disponible | 152 800€ | 409 | Appt. | Studio | 18.47m2 | 4ème | Disponible | 152 800€ | Voir |
| Voir | Disponible | 152 800€ | 410 | Appt. | Studio | 18.47m2 | 4ème | Disponible | 152 800€ | Voir |
| Voir | Disponible | 152 800€ | 411 | Appt. | Studio | 18.59m2 | 4ème | Disponible | 152 800€ | Voir |
| Voir | Disponible | 155 000€ | 412 | Appt. | Studio | 18.69m2 | 4ème | Disponible | 155 000€ | Voir |
| Voir | Disponible | 155 000€ | 415 | Appt. | Studio | 18.95m2 | 4ème | Disponible | 155 000€ | Voir |
| Voir | Disponible | 151 300€ | 418 | Appt. | Studio | 18.47m2 | 4ème | Disponible | 151 300€ | Voir |
| Voir | Disponible | 151 100€ | 419 | Appt. | Studio | 19.91m2 | 4ème | Disponible | 151 100€ | Voir |
| Voir | Disponible | 152 700€ | 501 | Appt. | Studio | 18.47m2 | 5ème | Disponible | 152 700€ | Voir |
| Voir | Disponible | 154 700€ | 502 | Appt. | Studio | 18.95m2 | 5ème | Disponible | 154 700€ | Voir |
| Voir | Disponible | 153 100€ | 503 | Appt. | Studio | 18.32m2 | 5ème | Disponible | 153 100€ | Voir |
| Voir | Disponible | 152 700€ | 504 | Appt. | Studio | 18.47m2 | 5ème | Disponible | 152 700€ | Voir |
| Voir | Disponible | 152 700€ | 505 | Appt. | Studio | 18.95m2 | 5ème | Disponible | 152 700€ | Voir |
| Voir | Disponible | 151 500€ | 506 | Appt. | Studio | 18.95m2 | 5ème | Disponible | 151 500€ | Voir |
| Voir | Disponible | 151 300€ | 507 | Appt. | Studio | 18.32m2 | 5ème | Disponible | 151 300€ | Voir |
| Voir | Disponible | 152 300€ | 508 | Appt. | Studio | 18.47m2 | 5ème | Disponible | 152 300€ | Voir |
| Voir | Disponible | 152 100€ | 509 | Appt. | Studio | 19.91m2 | 5ème | Disponible | 152 100€ | Voir |
| Voir | Disponible | 154 000€ | 317 | Appt. | Studio | 18.95m2 | 3ème | Disponible | 154 000€ | Voir |
| Voir | Disponible | 155 500€ | 108 | Appt. | Studio | 18.32m2 | 1er | Disponible | 155 500€ | Voir |