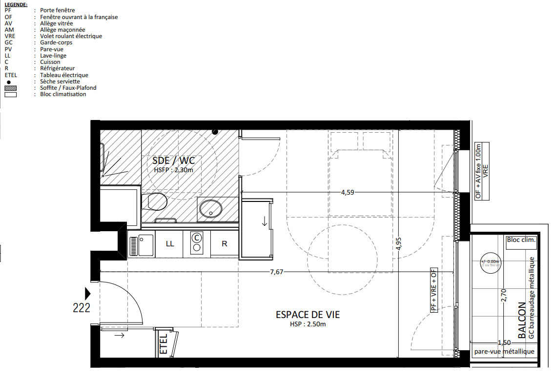
189 240€
Appt. au 2ème
Studio
35.61 m²
-
Sarlat-la-Canéda (24200)
1er trimestre 2028
01 81 80 39 10
Présentation du programme "Les Jardins de la Boétie - Résidence Seniors - LMNP"
[ SPÉCIAL INVESTISSEURS ] // SARLAT-LA-CANÉDA
Investissez dans la résidence LES JARDINS DE LA BOÉTIE, une solution patrimoniale adaptée pour se constituer des revenus locatifs complémentaires et préparer sereinement l’avenir.
La résidence se compose d’appartements du studio au 3 pièces, idéalement située entre la vallée de la Dordogne et la vallée de la Vézère, au cœur du Périgord Noir, tout en bénéficiant de la proximité du centre-ville de Sarlat-la-Canéda.
Ce projet d’investissement permet de bénéficier des avantages du statut LMNP (Loueur Meublé Non Professionnel) : récupération de la TVA*, loyers garantis par un bail commercial de 12 ans minimum, rentabilité annuelle attractive, ainsi qu’une gestion locative simplifiée, assurée par un gestionnaire unique, Espace & Vie.
Voir les conditions sur la page Mentions légales de notre site Vianova.fr
Contactez nos conseillers Lamotte à BRUGES, ou rendez-vous sur LAMOTTE.FR pour en savoir plus et profiter de cette opportunité d’investissement.
Autres logements Studio du programme "Les Jardins de la Boétie - Résidence Seniors - LMNP"
| Disponibilité | Prix | No | Genre | Pièces | Surface | Étage | Disponibilité | Prix | ||
|---|---|---|---|---|---|---|---|---|---|---|
| Voir | Disponible | 165 480€ | 008 | Appt. | Studio | 34.96m2 | 0-RDC | Disponible | 165 480€ | Voir |
| Voir | Disponible | 163 680€ | 009 | Appt. | Studio | 34.61m2 | 0-RDC | Disponible | 163 680€ | Voir |
| Voir | Disponible | 158 280€ | 011 | Appt. | Studio | 33.46m2 | 0-RDC | Disponible | 158 280€ | Voir |
| Voir | Disponible | 174 120€ | 107 | Appt. | Studio | 34.89m2 | 1er | Disponible | 174 120€ | Voir |
| Voir | Disponible | 174 480€ | 108 | Appt. | Studio | 34.96m2 | 1er | Disponible | 174 480€ | Voir |
| Voir | Disponible | 166 560€ | 111 | Appt. | Studio | 33.46m2 | 1er | Disponible | 166 560€ | Voir |
| Voir | Disponible | 166 920€ | 112 | Appt. | Studio | 30.18m2 | 1er | Disponible | 166 920€ | Voir |
| Voir | Disponible | 174 840€ | 117 | Appt. | Studio | 34.25m2 | 1er | Disponible | 174 840€ | Voir |
| Voir | Disponible | 177 000€ | 118 | Appt. | Studio | 34.7m2 | 1er | Disponible | 177 000€ | Voir |
| Voir | Disponible | 185 640€ | 123 | Appt. | Studio | 35.65m2 | 1er | Disponible | 185 640€ | Voir |
| Voir | Disponible | 171 600€ | 125 | Appt. | Studio | 33.02m2 | 1er | Disponible | 171 600€ | Voir |
| Voir | Disponible | 177 720€ | 207 | Appt. | Studio | 34.89m2 | 2ème | Disponible | 177 720€ | Voir |
| Voir | Disponible | 178 080€ | 208 | Appt. | Studio | 34.96m2 | 2ème | Disponible | 178 080€ | Voir |
| Voir | Disponible | 176 280€ | 209 | Appt. | Studio | 34.61m2 | 2ème | Disponible | 176 280€ | Voir |
| Voir | Disponible | 170 160€ | 211 | Appt. | Studio | 33.46m2 | 2ème | Disponible | 170 160€ | Voir |
| Voir | Disponible | 170 160€ | 212 | Appt. | Studio | 30.18m2 | 2ème | Disponible | 170 160€ | Voir |
| Voir | Disponible | 180 600€ | 218 | Appt. | Studio | 34.7m2 | 2ème | Disponible | 180 600€ | Voir |
| Voir | Disponible | 175 920€ | 225 | Appt. | Studio | 33.2m2 | 2ème | Disponible | 175 920€ | Voir |
| Voir | Disponible | 181 320€ | 307 | Appt. | Studio | 34.89m2 | 3ème | Disponible | 181 320€ | Voir |
| Voir | Disponible | 181 680€ | 308 | Appt. | Studio | 34.96m2 | 3ème | Disponible | 181 680€ | Voir |
| Voir | Disponible | 179 880€ | 309 | Appt. | Studio | 34.61m2 | 3ème | Disponible | 179 880€ | Voir |
| Voir | Disponible | 191 400€ | 312 | Appt. | Studio | 35.99m2 | 3ème | Disponible | 191 400€ | Voir |
| Voir | Disponible | 182 040€ | 316 | Appt. | Studio | 34.25m2 | 3ème | Disponible | 182 040€ | Voir |
| Voir | Disponible | 184 200€ | 317 | Appt. | Studio | 34.7m2 | 3ème | Disponible | 184 200€ | Voir |
| Voir | Disponible | 192 840€ | 321 | Appt. | Studio | 35.61m2 | 3ème | Disponible | 192 840€ | Voir |
| Voir | Disponible | 178 800€ | 323 | Appt. | Studio | 33.03m2 | 3ème | Disponible | 178 800€ | Voir |