241 500€
Appt. au 0-RDC
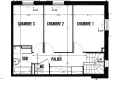
T4
86.02 m²
-
Équeurdreville-Hainneville (50120)
2ème trimestre 2027
01 81 80 39 10
Présentation du programme "Les Cottages des Margannes"
Réalisez votre rêve de devenir propriétaire dans un cocon paysager à Cherbourg ! Après le succès commercial, de deux très belles adresses à Cherbourg, Les Jardins d’Artemis I et les Jardins d’Artemis II, European Homes vous propose à Cherbourg un ensemble d’exception au cœur du quartier Les Jardins de l’Agora, un nouveau lieu de vie à très fort potentiel. C’est ici, dans un environnement naturel préservé et marqué par de magnifiques haies bocagères, qu’European Homes, fort de son savoir-faire de 50 ans, décline avec élégance l’esprit cottage caractérisé par le charme et le caractère d’une architecture contemporaine, l’utilisation de matériaux nobles et la part belle donnée aux espaces extérieurs. Ainsi, au sein des Cottages des Margannes, l’intimité est préservée, la convivialité et les échanges sont favorisés. Cela commence bien-sûr par des jardins privatifs ouverts, mais aussi par des espaces arborés qui ponctuent la résidence. Vivre dans un appartement comme dans une maison c’est possible, grâce au concept unique de l’Appartement-Jardin proposé en exclusivité au sein des Cottages des Margannes. Découvrez les 36 Appartements-Jardins décliné en 3 et 4 pièces en rez-de-jardin et en duplex, avec une pièce à vivre spacieuse prolongée d’un jardin individuel arboré, clôturé et d’un voisinage restreint. Tous les logements bénéficient de places de stationnement en extérieur. Niché entre la mer et la ville, le quartier Les Jardins de l’Agora offre un cadre de vie harmonieux, combinant sérénité et proximité avec toutes les commodités. Il se développe autour d’un site déjà prisé par les habitants pour les promenades, les activités sportives mais aussi pour la programmation très attractive de la salle culturelle de l’Agora. Le nouveau quartier se structure autour d’un parc prolongeant le site du Fort du Tôt et reliant l’Agora et les équipements sportifs d’Équeurdreville-Hainneville. La création d'espaces publics, d’une place centrale, de transports publics mais aussi des cheminements piétons et cyclables en font un lieu de vie convivial, authentique et chaleureux. Les Cottages des Margannes se situe à 5 min* de nombreux commerces et services. Pour ce qui est de l'éducation, l'école maternelle Léon Blum se trouve à 4 minutes*, les écoles primaires Jean Goubert et Albert Bayet à 5 minutes*, le collège Le Ferronay à 7 minutes*, le lycée Edmond Doucet à 5 minutes* et l'université de Cherbourg à seulement 5 minutes*.

