Prix
184 000€
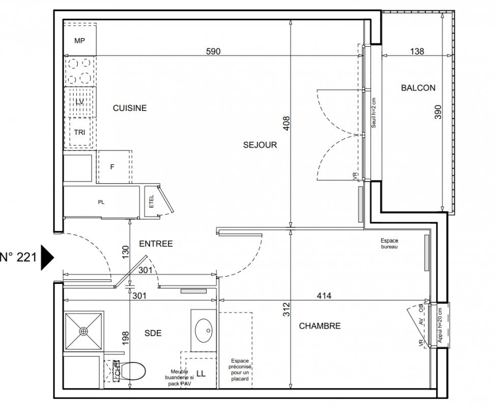
Type
Appt. au 2ème
Pièces
T2
Surface
45.01 m²
Exposition
Nord
Ville
Donville-les-Bains (50350)
Livraison
2ème trimestre 2027
Informations
01 81 80 39 10

Présentation du programme "Vert Bocage"

À moins de 10 min du centre-ville de Granville et des longues plages de sable fin, découvrez Vert Bocage à Donville-les-Bains. Niché dans un nouveau domaine paysager, ce projet résidentiel se compose d’un bâtiment contemporain de 27 appartements déclinés du 2 au 4 pièces, et de 8 maisons de 4 et 5 pièces. L’élégance de l’architecture, l’harmonie des volumes intérieurs et la générosité des espaces extérieurs signent un lieu de vie idéal.

Autres logements T2 du programme "Vert Bocage"

Disponibilité Prix Genre Pièces Surface Étage
Voir
Disponible
179 000€ Appt. T2 45.01m2 1er
Voir
Disponible
179 000€ Appt. T2 45.01m2 1er
Voir
Disponible
184 000€ Appt. T2 43.49m2 2ème
DO NOT CLICK