Prix
239 400€
Type
Appt. au 2ème
Pièces
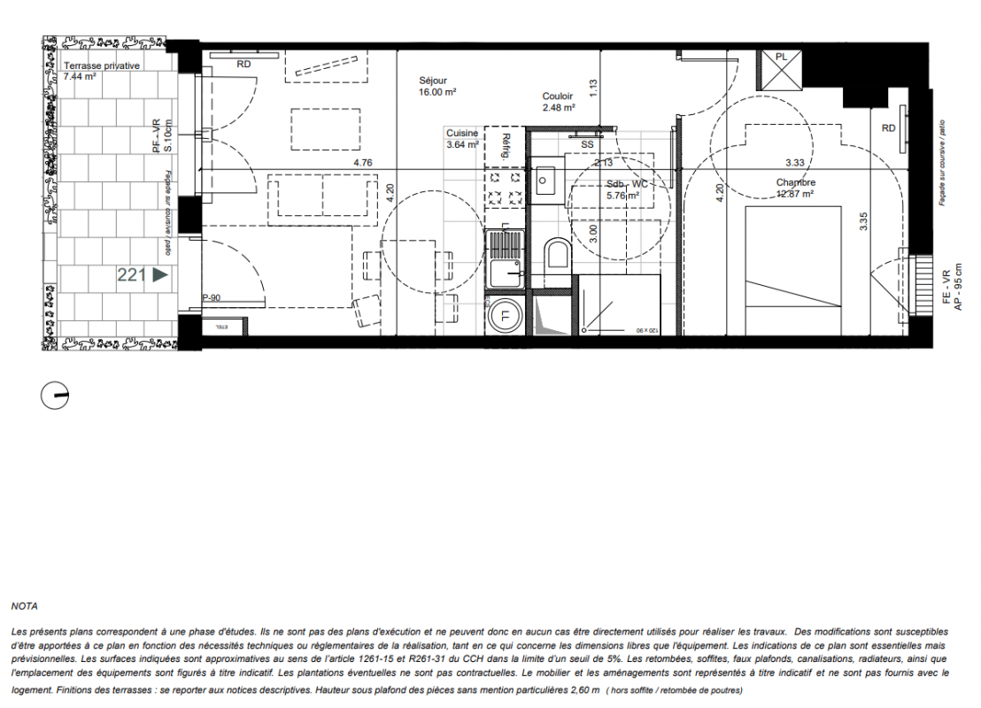
T2
Surface
41.3 m²
Exposition
Sud
Ville
Cherbourg-Octeville (50100)
Livraison
1er trimestre 2028
Informations
01 81 80 39 10

Présentation du programme "Le Ratti"

 Programme éligible au dispositif Denormandie optimisé au déficit foncier Investissez à Cherbourg-en-Cotentin, une commune attractive entre mer et histoire Située dans le département de la Manche, Cherbourg-en-Cotentin offre une qualité de vie exceptionnelle grâce à son cadre maritime, ses espaces verts et son patrimoine culturel riche.Avec 85 485 habitants, il s’agit de l’une des villes les plus sûres de France où il fait bon vivre.Avec son cadre naturel préservé, entre parcs verdoyants et littoral, Cherbourg-en-Cotentin offre une qualité de vie alliant tranquillité et évasion. Une ville attractive grâce à son dynamisme économique La ville bénéficie d’un fort dynamisme économique, porté par son port de renommée mondiale et ses industries innovantes dans les nouvelles technologies et l’énergie.Un bassin d’emploi dynamique, soutenu par le port de Cherbourg, les industries de haute technologie et le secteur de la défense, garantissant une attractivité économique et résidentielle. Commodités à proximitéUn quartier central et bien desservi : à quelques minutes du centre-ville et 14 lignes de bus facilitent les déplacements au sein de la ville.Accès rapide aux grandes villes : Gare SNCF et port à proximité permettant des liaisons vers l’Angleterre et d’autres destinations.A proximité immédiate des infrastructures scolaires et des commerces. Focus prestations/résidenceUne adresse emblématique au cœur de Cherbourg, dans le quartier animé du bassin du commerce.Un bâtiment historique restauré, avec une architecture Art Déco et Art Nouveau préservée.Des appartements du T1 au T3 dont certains avec espaces extérieurs. Un patio lumineux se situe au cœur du programme.Des matériaux de qualité soigneusement sélectionnés pour les sols, murs et menuiseries. Le + du programmeUn projet de réhabilitation d’exception alliant patrimoine et modernité.

Autres logements T2 du programme "Le Ratti"

Pas de logements disponibles
DO NOT CLICK