Prix
310 000€
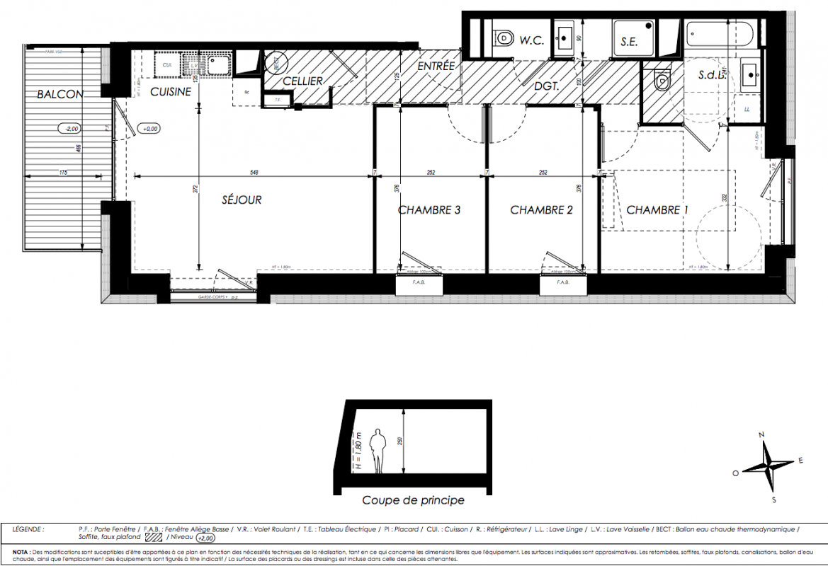
Type
Appt. au 2ème
Pièces
T4
Surface
76.82 m²
Exposition
-
Ville
Agon-Coutainville (50230)
Livraison
3ème trimestre 2027
Informations
01 81 80 39 10

Présentation du programme "Les Hauts d'Agon"

Entre terre et mer, une adresse privilégiée en Normandie
Station balnéaire recherchée de la Manche, Agon-Coutainville séduit par son cadre de vie exceptionnel et son dynamisme. La commune attire aussi bien les résidents permanents que les vacanciers, créant une belle opportunité pour un investissement locatif pérenne, en gestion saisonnière comme en location à l’année. Votre résidence neuve conjugue avec talent les atouts d'une construction neuve écoresponsable et le charme authentique d'une architecture respectueuse du patrimoine local, garantissant une excellente valorisation patrimoniale. La performance énergétique exemplaire (RE 2020) assure une maîtrise optimale des charges, pour un budget toujours contrôlé. Une superbe adresse, qui se prêtera parfaitement à des envies de résidence secondaire.

Autres logements T4 du programme "Les Hauts d'Agon"

Disponibilité Prix Genre Pièces Surface Étage
Voir
Disponible
335 000€ Appt. T4 78.99m2 2ème
Voir
Disponible
329 000€ Appt. T4 85.74m2 1er
Voir
Disponible
335 000€ Appt. T4 86.47m2 1er
DO NOT CLICK