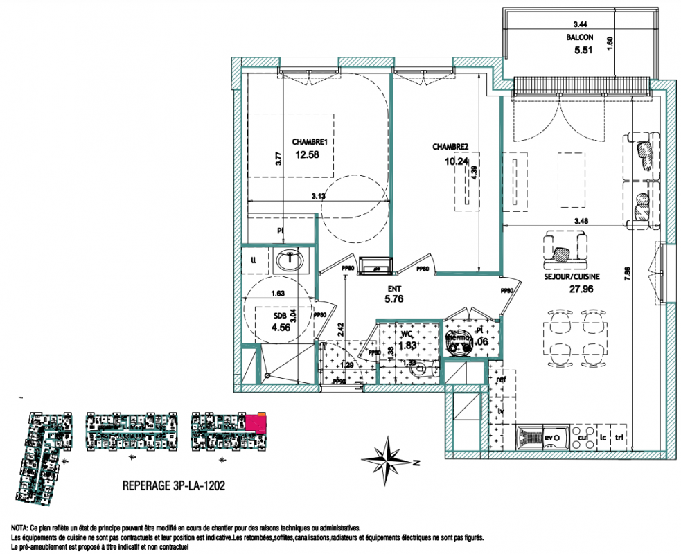
507 000€
Appt. au 2ème
T3
64.11 m²
Nord
Benerville-sur-Mer (14910)
4ème trimestre 2028
01 81 80 39 10
Présentation du programme "VILLAS GABRIEL 1"
A 2 heures de Paris en voiture, la résidence VILLAS GABRIEL vous accueille dans un cadre exceptionnel du littoral normand, au cœur de la charmante station de Bénerville-sur-Mer. Nichée à 300 m de la plage et à seulement 2 km du centre de Deauville, cette nouvelle réalisation offre tous les avantages d’un investissement pérenne entre mer et prestige. Festival, casino, courses hippiques, shopping et moments de détente sur la célèbre promenade des planches, ici c’est toute l’effervescence de Deauville qui s’offre à votre porte. Située à l’angle de la rue Gaston Gallimard et de la rue Cornier, la résidence VILLAS GABRIEL se pare d’une élégante architecture néo-normande, parfaitement intégrée dans l’environnement de ce quartier calme et verdoyant de Bénerville-sur-Mer. Répartis sur trois bâtiments, les appartements de standing déclinés du studio au 5 pièces présentent des volumes fonctionnels et lumineux, tous prolongés d’un balcon, d’une terrasse ou d’un jardin privatif. Chaque intérieur bénéficie de prestations de confort soignées, associées à des matériaux de qualité et à une isolation thermique et acoustique performante. Au sous-sol, la résidence abrite des parkings privatifs et des locaux à vélos sécurisés.
Que ce soit pour y vivre à l’année, profiter d’une résidence secondaire ou réaliser un investissement locatif saisonnier, ce programme répond aux attentes d’une clientèle exigeante, en quête d’un art de vivre où raffinement et sérénité se conjuguent au quotidien. Soyez parmi les premiers à choisir cette adresse rare de Bénerville-sur-Mer en nous contactant au 01 81 80 39 10.
Autres logements T3 du programme "VILLAS GABRIEL 1"
| Disponibilité | Prix | No | Genre | Pièces | Surface | Étage | Disponibilité | Prix | ||
|---|---|---|---|---|---|---|---|---|---|---|
| Voir | Disponible | 497 000€ | 1101 | Appt. | T3 | 66.91m2 | 1er | Disponible | 497 000€ | Voir |
| Voir | Disponible | 492 000€ | 1102 | Appt. | T3 | 64.11m2 | 1er | Disponible | 492 000€ | Voir |
| Voir | Disponible | 594 000€ | 1103 | Appt. | T3 | 76.42m2 | 1er | Disponible | 594 000€ | Voir |
| Voir | Disponible | 513 000€ | 1201 | Appt. | T3 | 66.91m2 | 2ème | Disponible | 513 000€ | Voir |
| Voir | Disponible | 609 000€ | 1203 | Appt. | T3 | 76.42m2 | 2ème | Disponible | 609 000€ | Voir |
| Voir | Disponible | 520 000€ | 1301 | Appt. | T3 | 64.18m2 | 3ème | Disponible | 520 000€ | Voir |
| Voir | Disponible | 447 000€ | 1302 | Appt. | T3 | 53.95m2 | 3ème | Disponible | 447 000€ | Voir |
| Voir | Disponible | 624 000€ | 1303 | Appt. | T3 | 75.63m2 | 3ème | Disponible | 624 000€ | Voir |
| Voir | Disponible | 569 000€ | 1305 | Appt. | T3 | 68.59m2 | 3ème | Disponible | 569 000€ | Voir |
| Voir | Optionné | 550 000€ | 2001 | Appt. | T3 | 74.07m2 | 0-RDC | Optionné Mais pas encore vendu 😉 | 550 000€ | Voir |
| Voir | Disponible | 555 000€ | 2101 | Appt. | T3 | 74.06m2 | 1er | Disponible | 555 000€ | Voir |
| Voir | Disponible | 565 000€ | 2102 | Appt. | T3 | 70.59m2 | 1er | Disponible | 565 000€ | Voir |
| Voir | Disponible | 568 000€ | 2103 | Appt. | T3 | 70.59m2 | 1er | Disponible | 568 000€ | Voir |
| Voir | Disponible | 495 000€ | 2105 | Appt. | T3 | 61.73m2 | 1er | Disponible | 495 000€ | Voir |
| Voir | Disponible | 556 000€ | 2106 | Appt. | T3 | 70.26m2 | 1er | Disponible | 556 000€ | Voir |
| Voir | Disponible | 577 000€ | 2202 | Appt. | T3 | 70.59m2 | 2ème | Disponible | 577 000€ | Voir |
| Voir | Disponible | 582 000€ | 2203 | Appt. | T3 | 70.59m2 | 2ème | Disponible | 582 000€ | Voir |
| Voir | Disponible | 500 000€ | 2205 | Appt. | T3 | 61.73m2 | 2ème | Disponible | 500 000€ | Voir |
| Voir | Disponible | 564 000€ | 2206 | Appt. | T3 | 72.26m2 | 2ème | Disponible | 564 000€ | Voir |
| Voir | Disponible | 580 000€ | 2301 | Appt. | T3 | 71.04m2 | 3ème | Disponible | 580 000€ | Voir |
| Voir | Disponible | 547 000€ | 2303 | Appt. | T3 | 69.89m2 | 3ème | Disponible | 547 000€ | Voir |
| Voir | Disponible | 488 000€ | 2304 | Appt. | T3 | 59.05m2 | 3ème | Disponible | 488 000€ | Voir |