Prix
191 000€
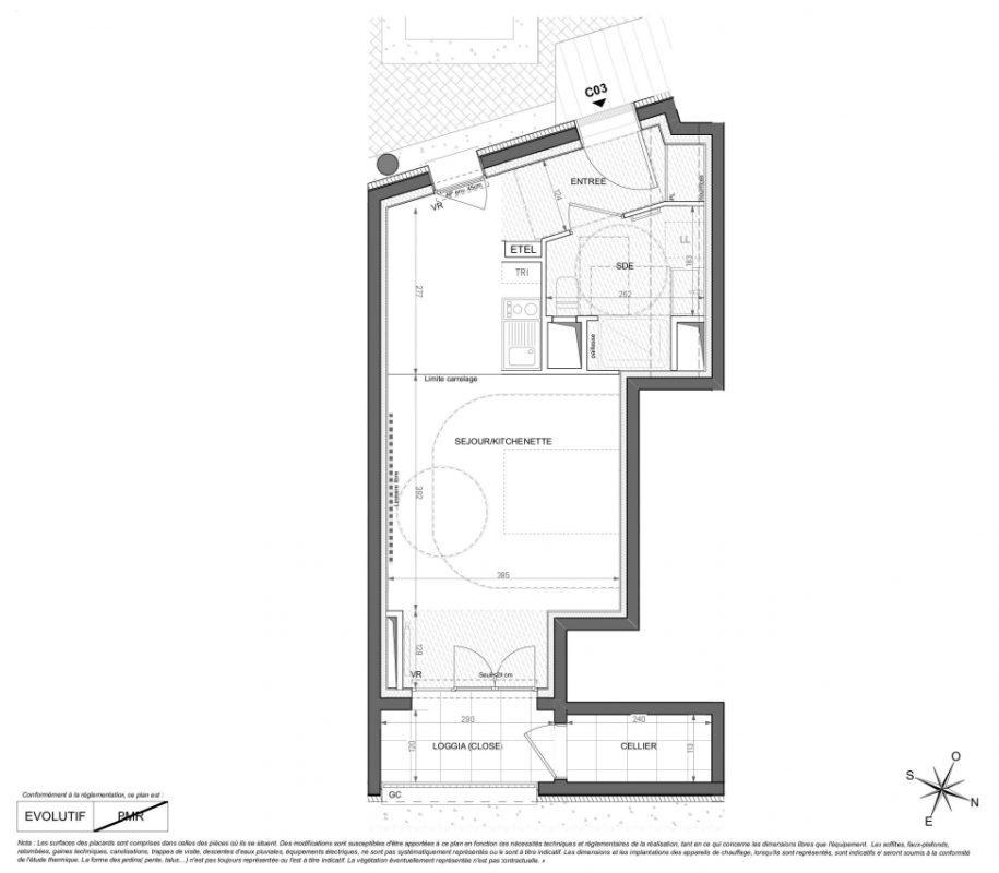
Type
Appt. au 0-RDC
Pièces
-
Surface
34.95 m²
Exposition
Est
Ville
Poissy (78300)
Livraison
1er trimestre 2028
Informations
01 81 80 39 10

Présentation du programme "PROMENADE DE LISLE"


Menuiseries extérieures bois/alu avec volets roulants aluminium à commande manuelle
Parquet contrecollé ou massif en 70 mm dans les pièces sèches
Carrelage 45x45 cm dans les cuisines
Faïence à hauteur d’huisserie au droit de la baignoire/douche
Meuble vasque à tiroirs sur pieds
Pare-douche pour les salles d’eau
Sèche-serviettes électrique
Vidéophone
Placards avec aménagements
Dalles sur plots béton sur les balcons et terrasses

Pour l’environnement :

Chauffage et eau chaude sanitaire par PAC (Pompe à chaleur)
Points d’apports volontaires pour collecte pneumatique à proximité immédiate des bâtiments
Cœur d’îlot paysagé et en pleine terre
Potagers partagés en cœur d’ilot

Pour la sécurité :

Résidence clôturée et sécurisée par un vigik
Accès aux halls d’entrée par vidéophone et platine vigik
Accès au sous-sol par ascenseurs contrôlés par vigik
Porte-palière blindée 5 points certifiée A2P*

Autres logements - du programme "PROMENADE DE LISLE"

Disponibilité Prix Genre Pièces Surface Étage
Voir
Disponible
177 000€ Appt. - 32.1m2 1er
Voir
Disponible
192 000€ Appt. - 32.1m2 2ème
DO NOT CLICK