Ce lot n’est plus disponible chez VIANOVA ou est vendu.

Vous pouvez revenir dans 24h pour vérifier le stock à jour ou contacter un conseiller Vianova pour vérifier le stock en direct.
Vous pouvez également continuer votre recherche sur notre site « ici ».

Prix
302 467€  (TVA 20%)
265 919€  (TVA 5.5%)
Type
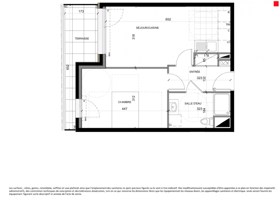
Appt. au 0-RDC
Pièces
T2
Surface
43.95 m²
Exposition
-
Ville
Villiers-sur-Marne (94350)
Livraison
4ème trimestre 2027
Informations
01 81 80 39 10

Présentation du programme "Domaine Des Prunais (Bâtiment A)"

 Nichée dans un environnement paisible et verdoyant, notre nouvelle résidence s’apprête à voir le jour et à offrir un cadre de vie harmonieux, à la fois moderne et intimement connecté à la nature. Avec son architecture élégante, ses lignes contemporaines et ses matériaux soigneusement sélectionnés, elle s’inscrit parfaitement dans son environnement tout en affirmant une identité forte et intemporelle.La conception des appartements neufs du studio au 5 pièces a été pensée pour répondre aux plus hautes exigences de confort : généreuses surfaces, luminosité naturelle omniprésente, agencements optimisés et prestations de qualité. Chaque logement bénéficie d’un espace extérieur – balcon, terrasse panoramique ou jardin privatif.Des commerces et restaurants viendront animer les rez-de-chaussée, créant un lien naturel entre les habitants et les acteurs du quartier. Une nouvelle centralité. Mais ce projet va encore plus loin. Il propose un véritable retour à l’essentiel avec des espaces communs inédits : un verger partagé, un potager collaboratif, un jardin d’enfants, ouverts à tous les résidents. Des lieux pensés pour cultiver à la fois la terre… et les liens humains.Parfaitement connectée, la résidence bénéficie d’un emplacement stratégique à seulement 10 minutes* de la gare du Grand Paris Noisy–Champs, accessible directement en bus ou en voiture. Véritable hub de mobilité, cette gare figure parmi les plus importantes d’Île-de-France, reliant rapidement Paris et les grands pôles économiques de la métropole. Une accessibilité précieuse qui renforce l’attractivité du projet, aussi bien pour les résidents actifs que pour les investisseurs en quête de valorisation durable.

Autres logements T2 du programme "Domaine Des Prunais (Bâtiment A)"

Disponibilité Prix Genre Pièces Surface Étage
Voir
Archivé
288 018€ Appt. T2 43.95m2 0-RDC
Voir
Archivé
282 725€ Appt. T2 43.45m2 0-RDC
Voir
Archivé
288 882€ Appt. T2 42.83m2 0-RDC
Voir
Archivé
277 231€ Appt. T2 43.45m2 0-RDC
Voir
Archivé
284 003€ Appt. T2 44.52m2 0-RDC
Voir
Archivé
293 098€ Appt. T2 43.95m2 0-RDC
Voir
Archivé
288 909€ Appt. T2 44.52m2 0-RDC
Voir
Archivé
301 273€ Appt. T2 43.75m2 0-RDC
Voir
Archivé
298 756€ Appt. T2 48.99m2 0-RDC
Voir
Archivé
299 119€ Appt. T2 48.99m2 0-RDC
Voir
Archivé
297 681€ Appt. T2 48.13m2 0-RDC
Voir
Archivé
297 946€ Appt. T2 43.11m2 0-RDC
Voir
Archivé
311 338€ Appt. T2 48.99m2 0-RDC
DO NOT CLICK