211 450€ (TVA 10%)
202 800€ (TVA 5.5%)
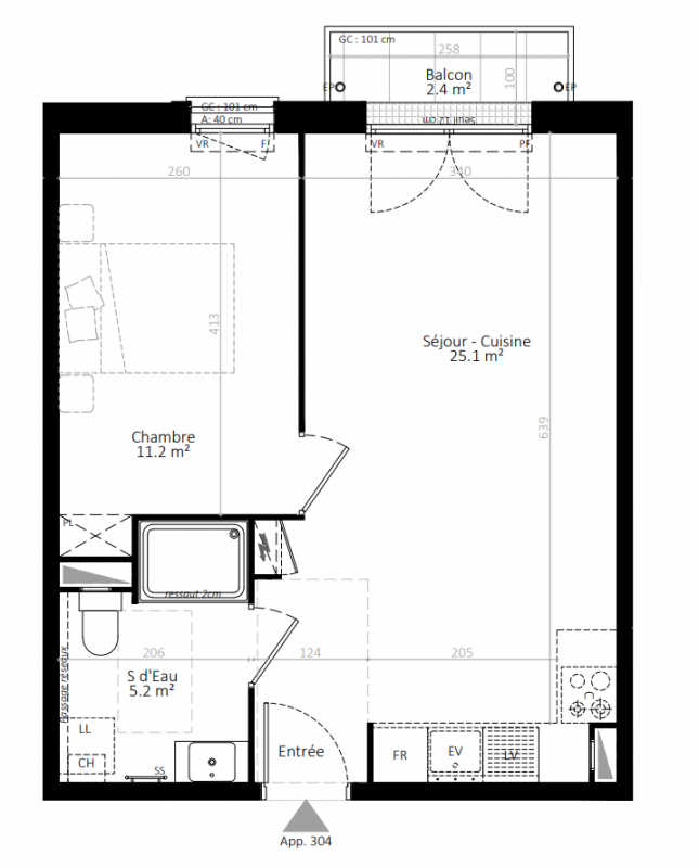
Appt. au 3ème
T2
41.4 m²
-
Villeneuve-Saint-Georges (94190)
2ème trimestre 2028
01 81 80 39 10
Présentation du programme "VILLA NOVA"
Localisation et potentiel marché : Le programme VILLA NOVA est situé à Villeneuve-Saint-Georges (94), à 15 km de la porte de Bercy, dans un secteur pavillonnaire recherché, calme et verdoyant. La commune bénéficie d'une forte accessibilité vers Paris, via le RER D (station Villeneuve-Triage - Paris Gare de Lyon en moins de 25 min), la RN6 et l'A86, ainsi que d'une proximité avec l'aéroport d'Orly.
Zone à demande résidentielle soutenue, portée par les actifs franciliens et les primo-accédants recherchant des prix plus accessibles aux portes de Paris.
Description de l'opération : Résidence neuve à taille humaine de 39 logements, du 2 au 4 pièces, avec surfaces généreuses jusqu'à 80 m². Implantation entre la rue Danton et la rue Gabriel Cordier, offrant un double accès et un environnement résidentiel qualitatif, à proximité immédiate des équipements sportifs et du coeur de ville.
Programme conforme à la RE 2020, garantissant performance énergétique, charges maîtrisées et pérennité patrimoniale.
Typologies et cibles commerciales :
- 2 pièces : primo-accédants solos ou jeunes couples.
- 3 pièces : coeur de cible résidence principale.
- 4 pièces : familles primo-accédantes recherchant un premier achat durable.
Tous les logements disposent d'un balcon (jusqu'à 9 m²) et de plans optimisés avec cuisines ouvertes.
Arguments de vente clés :
- Offre neuve rare en secteur pavillonnaire.
- Forte accessibilité Paris / Orly.
- Résidence sécurisée et qualitative.
- Espaces extérieurs privatifs sur l'ensemble des logements.
- Architecture soignée, matériaux durables, image patrimoniale.
- 43 places de stationnement et local vélos.
- Équipements et prestations
- Hall d'entrée avec patio.
- Façades en pierre, lucarnes stylisées.
- Garde-corps ajourés en acier.
- Volets battants bois sur certains bâtiments.
- Jardin paysager en coeur d'îlot.
- Sécurisation complète : digicode, vidéophone, porte palière renforcée.
Contexte urbain et services :
- Commerces et services de proximité accessibles à pied.
- Écoles, collèges et lycées dans la commune.
- Marché central et équipements culturels.
- Espaces verts et berges de Seine à proximité.
Grand lancement commercial les 17 et 18 janvier 2026.
Autres logements T2 du programme "VILLA NOVA"
| Disponibilité | Prix | No | Genre | Pièces | Surface | Étage | Disponibilité | Prix | ||
|---|---|---|---|---|---|---|---|---|---|---|
| Voir | Disponible | 227 374€ | 308 | Appt. | T2 | 39.1m2 | 3ème | Disponible | 227 374€ | Voir |
| Voir | Disponible | 224 531€ | 208 | Appt. | T2 | 39.2m2 | 2ème | Disponible | 224 531€ | Voir |
| Voir | Disponible | 222 825€ | 108 | Appt. | T2 | 39.2m2 | 1er | Disponible | 222 825€ | Voir |
| Voir | Disponible | 204 626€ | 205 | Appt. | T2 | 39.6m2 | 2ème | Disponible | 204 626€ | Voir |
| Voir | Disponible | 206 900€ | 305 | Appt. | T2 | 39.6m2 | 3ème | Disponible | 206 900€ | Voir |
| Voir | Disponible | 225 100€ | 101 | Appt. | T2 | 39.6m2 | 1er | Disponible | 225 100€ | Voir |
| Voir | Disponible | 216 569€ | 404 | Appt. | T2 | 40.5m2 | 4ème | Disponible | 216 569€ | Voir |
| Voir | Disponible | 212 019€ | 203 | Appt. | T2 | 41.4m2 | 2ème | Disponible | 212 019€ | Voir |
| Voir | Disponible | 208 607€ | 204 | Appt. | T2 | 41.4m2 | 2ème | Disponible | 208 607€ | Voir |
| Voir | Disponible | 214 294€ | 303 | Appt. | T2 | 41.4m2 | 3ème | Disponible | 214 294€ | Voir |
| Voir | Disponible | 213 725€ | 206 | Appt. | T2 | 43m2 | 2ème | Disponible | 213 725€ | Voir |
| Voir | Disponible | 216 000€ | 306 | Appt. | T2 | 43m2 | 3ème | Disponible | 216 000€ | Voir |
| Voir | Disponible | 205 194€ | 106 | Appt. | T2 | 43m2 | 0-RDC | Disponible | 205 194€ | Voir |
| Voir | Disponible | 263 773€ | 408 | Appt. | T2 | 45.3m2 | 4ème | Disponible | 263 773€ | Voir |