Prix
356 000€
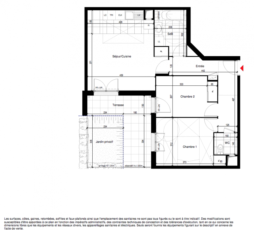
Type
Appt. au 0-RDC
Pièces
T3
Surface
63.83 m²
Exposition
-
Ville
Thiais (94320)
Livraison
3ème trimestre 2026
Informations
01 81 80 39 10

Présentation du programme "Les Terrasses Du Parc"

 Sur un site très préservé, en cœur d’îlot, la résidence Les Terrasses Du Parc offre un environnement de verdure exceptionnel. Bordée par un magnifique espace boisé, Les Terrasses Du Parc s’entoure de beaux jardins paysagers. Pour en profiter pleinement, les appartements neufs du 2 pièces au 5 pièces, disposent tous d’un balcon, d’une loggia, d’une terrasse ou d’un jardin privatif.Dans un cadre entièrement piétonnier, cette nouvelle résidence offre une qualité de vie résolument tournée vers la nature, où les jardins invitent à se détendre, se retrouver entre voisins au potager ou sur la placette arborée.  La résidence est située à 500 mètres du tramway T7, qui rejoint le métro ligne 7 en 6 minutes mais aussi Rungis et l’aéroport d’Orly. 

Autres logements T3 du programme "Les Terrasses Du Parc"

Disponibilité Prix Genre Pièces Surface Étage
Voir
Disponible
375 000€ Appt. T3 67.85m2 0-RDC
DO NOT CLICK