Prix
301 000€
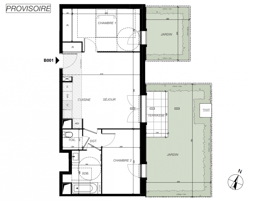
Type
Appt. au 0-RDC
Pièces
T3
Surface
59.3 m²
Exposition
-
Ville
Limeil-Brévannes (94450)
Livraison
1er trimestre 2028
Informations
01 81 80 39 10

Présentation du programme "L’Orée du Square"

Une adresse verte et paisible à 25 min de Paris
Voisine de Créteil, Limeil-Brévannes possède le charme rare des communes encore confidentielles, à moins d’une demi-heure de la capitale. Son territoire compact rend possible un quotidien piéton, idéal pour des familles et actifs en quête de sérénité, aux portes de Paris. La présence, à 10 min* de vélo, de deux lignes de RER (A et D) et de la ligne 8 du métro fait de la commune un havre très recherché.Avec cette résidence verdoyante, nichée entre square et cœur d’îlot paysager, Kaufman & Broad et M&S Développement Immobilier tirent le meilleur d’une adresse empreinte de quiétude. Située en zone A, la ville se prête parfaitement à un achat locatif. Elle sera également performante en location meublée, à destination d’une large clientèle d’étudiants et jeunes actifs. Un placement à fort potentiel dans le Val-de-Marne.*Source : Google Maps

Autres logements T3 du programme "L’Orée du Square"

Disponibilité Prix Genre Pièces Surface Étage
Voir
Disponible
305 000€ Appt. T3 61.8m2 0-RDC
DO NOT CLICK