Ce lot n’est plus disponible chez VIANOVA ou est vendu.
Vous pouvez revenir dans 24h pour vérifier le stock à jour ou contacter un conseiller Vianova pour vérifier le stock en direct.
Vous pouvez également continuer votre recherche sur notre site « ici ».
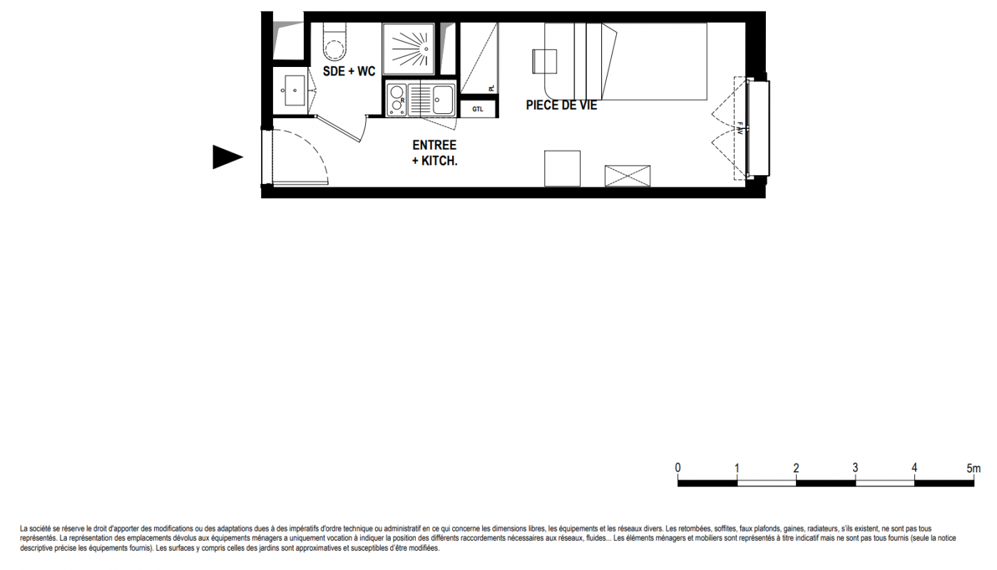
154 920€
Appt. au 6ème
Studio
21.06 m²
Nord-Est
Bry-sur-Marne (94360)
2ème trimestre 2028
01 81 80 39 10
Présentation du programme "SWEETLY BRY SUR MARNE"
La résidence Sweetly Bry-sur-Marne, située entre l’école Méliès et les studios de Bry-sur-Marne, s’inscrit naturellement dans l’univers singulier du cinéma, au cœur d’un quartier dédié à la création audiovisuelle.
Composée de 200 appartements meublés, la résidence adopte un vocabulaire architectural inspiré de l’Art Déco, rappelant l’âge d’or du cinéma. Les façades se distinguent par leurs courbes élégantes, leurs céramiques turquoise sur fond pierre et leurs corniches finement travaillées, qui composent une écriture architecturale raffinée.
La résidence propose des espaces communs intérieurs accueillants, inspirés de l’univers du cinéma, parfaits pour se détendre et se divertir : espace de coworking, espace cinéma, salle de fitness...
A l’arrière du bâtiment, une terrasse commune prolongée d’un boulodrome et de potagers partagés invitent les résidents à se retrouver pour partager des moments de convivialité.
Autres logements Studio du programme "SWEETLY BRY SUR MARNE"
| Disponibilité | Prix | No | Genre | Pièces | Surface | Étage | Disponibilité | Prix | ||
|---|---|---|---|---|---|---|---|---|---|---|
| Voir | Optionné | 151 440€ | A1.05 | Appt. | Studio | 21.06m2 | 1er | Optionné Mais pas encore vendu 😉 | 151 440€ | Voir |
| Voir | Optionné | 149 160€ | A3.06 | Appt. | Studio | 20.49m2 | 3ème | Optionné Mais pas encore vendu 😉 | 149 160€ | Voir |
| Voir | Optionné | 182 880€ | A3.22 | Appt. | Studio | 26.71m2 | 3ème | Optionné Mais pas encore vendu 😉 | 182 880€ | Voir |
| Voir | Disponible | 152 040€ | A4.23 | Appt. | Studio | 20.86m2 | 4ème | Disponible | 152 040€ | Voir |
| Voir | Disponible | 153 600€ | A4.24 | Appt. | Studio | 21.06m2 | 4ème | Disponible | 153 600€ | Voir |
| Voir | Disponible | 153 600€ | A4.25 | Appt. | Studio | 21.06m2 | 4ème | Disponible | 153 600€ | Voir |
| Voir | Disponible | 150 480€ | A4.26 | Appt. | Studio | 20.61m2 | 4ème | Disponible | 150 480€ | Voir |
| Voir | Disponible | 151 440€ | A5.26 | Appt. | Studio | 20.61m2 | 5ème | Disponible | 151 440€ | Voir |
| Voir | Disponible | 151 440€ | A5.27 | Appt. | Studio | 20.61m2 | 5ème | Disponible | 151 440€ | Voir |
| Voir | Disponible | 150 720€ | A5.28 | Appt. | Studio | 20.49m2 | 5ème | Disponible | 150 720€ | Voir |
| Voir | Disponible | 150 720€ | A5.29 | Appt. | Studio | 20.49m2 | 5ème | Disponible | 150 720€ | Voir |
| Voir | Disponible | 153 000€ | A5.30 | Appt. | Studio | 20.86m2 | 5ème | Disponible | 153 000€ | Voir |
| Voir | Disponible | 153 000€ | A5.31 | Appt. | Studio | 20.86m2 | 5ème | Disponible | 153 000€ | Voir |
| Voir | Disponible | 155 880€ | A5.32 | Appt. | Studio | 21.06m2 | 5ème | Disponible | 155 880€ | Voir |
| Voir | Disponible | 155 880€ | A5.33 | Appt. | Studio | 21.06m2 | 5ème | Disponible | 155 880€ | Voir |
| Voir | Disponible | 154 560€ | A5.34 | Appt. | Studio | 20.86m2 | 5ème | Disponible | 154 560€ | Voir |
| Voir | Disponible | 140 640€ | A5.35 | Appt. | Studio | 18.82m2 | 5ème | Disponible | 140 640€ | Voir |
| Voir | Disponible | 172 320€ | A6.01 | Appt. | Studio | 23.8m2 | 6ème | Disponible | 172 320€ | Voir |
| Voir | Disponible | 154 200€ | A6.02 | Appt. | Studio | 21.06m2 | 6ème | Disponible | 154 200€ | Voir |
| Voir | Disponible | 154 920€ | A6.04 | Appt. | Studio | 21.06m2 | 6ème | Disponible | 154 920€ | Voir |
| Voir | Disponible | 154 920€ | A6.05 | Appt. | Studio | 21.06m2 | 6ème | Disponible | 154 920€ | Voir |
| Voir | Disponible | 156 480€ | A6.17 | Appt. | Studio | 21.06m2 | 6ème | Disponible | 156 480€ | Voir |
| Voir | Disponible | 156 480€ | A6.18 | Appt. | Studio | 21.06m2 | 6ème | Disponible | 156 480€ | Voir |
| Voir | Disponible | 156 480€ | A6.19 | Appt. | Studio | 21.06m2 | 6ème | Disponible | 156 480€ | Voir |
| Voir | Disponible | 156 480€ | A6.20 | Appt. | Studio | 21.06m2 | 6ème | Disponible | 156 480€ | Voir |
| Voir | Disponible | 156 480€ | A6.21 | Appt. | Studio | 21.06m2 | 6ème | Disponible | 156 480€ | Voir |
| Voir | Disponible | 143 520€ | A6.25 | Appt. | Studio | 18.82m2 | 6ème | Disponible | 143 520€ | Voir |