Ce lot n’est plus disponible chez VIANOVA ou est vendu.
Vous pouvez revenir dans 24h pour vérifier le stock à jour ou contacter un conseiller Vianova pour vérifier le stock en direct.
Vous pouvez également continuer votre recherche sur notre site « ici ».
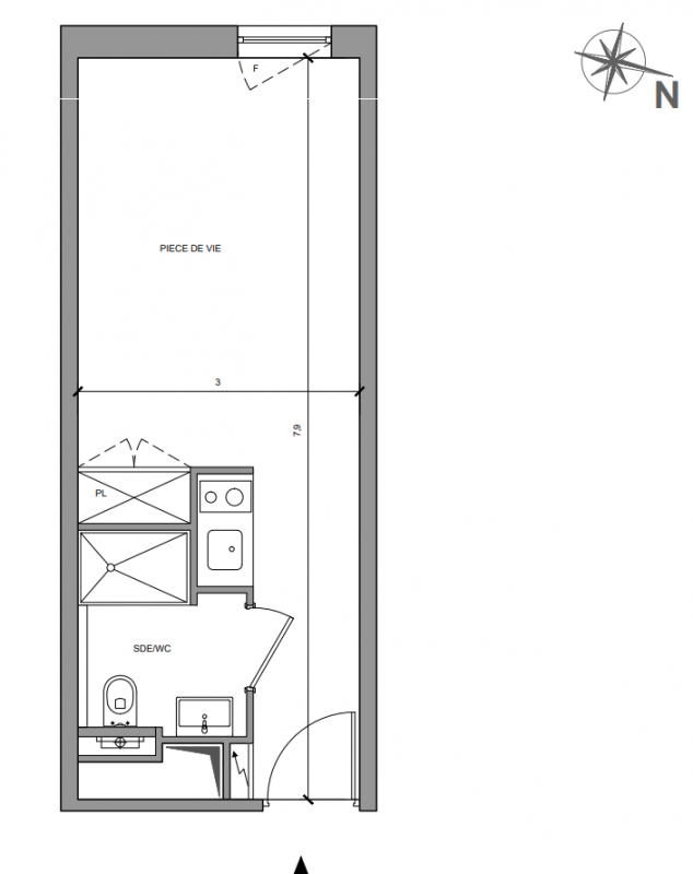
148 420€
Appt. au 0-RDC
-
22 m²
Ouest
Roissy-en-France (95700)
2ème trimestre 2027
01 81 80 39 10
Présentation du programme "Symone By Adonis Roissy"
"Symone by Adonis" est une résidence plurielle permettant de vivre une expérience sensorielle et immersive haut de gamme spécialement conçue pour les audacieux.
Elle bénéficie de la proximité des transports en commun :
- A 9 min à pied de l'arrêt de bus "Passerelle"
- A 10 min en bus du RER - ligne B - arrêt "Aéroport CDG"
- A 2 min en voiture de l'autoroute A1, permettant de rejoindre Paris et les grands axes de l'est parisien (dont l'A3)
Une nouvelle ligne de bus HNS facilitera l'accès au Parc des expositions de Villepinte (arrêt de bus à 300 m de la résidence)
Le Golf de 18 trous est accessible en moins de 5 min en voiture ou à vélo via une piste-cyclable, ou en moins de 20 min à pied via des voies protégées.
Elle a été pensée et imaginés comme une véritable expérience d'hébergement unique pour ses clients à travers une multitude de services et de divertissement sur-mesure pour enrichir leur séjour.
Une ambiance originale, dans laquelle la décoration a été pensée de manière ludique et fonctionnelle pour faire voyager dans son univers GAMING, FUN, ARTY et DESIGN.
Elle offre de nombreux espaces communs dans une ambiance originale : espace d'accueil / espace lounge, lobby / coworking, espace petit-déjeuner, salle de sport, bagagerie.
Autres logements - du programme "Symone By Adonis Roissy"
| Disponibilité | Prix | No | Genre | Pièces | Surface | Étage | Disponibilité | Prix | ||
|---|---|---|---|---|---|---|---|---|---|---|
| Voir | Optionné | 125 486€ | 106 | Appt. | - | 18.3m2 | 0-RDC | Optionné Mais pas encore vendu 😉 | 125 486€ | Voir |
| Voir | Disponible | 160 450€ | 109 | Appt. | - | 24m2 | 0-RDC | Disponible | 160 450€ | Voir |
| Voir | Disponible | 152 029€ | 116 | Appt. | - | 22.6m2 | 0-RDC | Disponible | 152 029€ | Voir |
| Voir | Optionné | 150 224€ | 124 | Appt. | - | 22.3m2 | 0-RDC | Optionné Mais pas encore vendu 😉 | 150 224€ | Voir |
| Voir | Optionné | 126 164€ | 132 | Appt. | - | 18.3m2 | 0-RDC | Optionné Mais pas encore vendu 😉 | 126 164€ | Voir |
| Voir | Disponible | 126 164€ | 143 | Appt. | - | 18.3m2 | 0-RDC | Disponible | 126 164€ | Voir |
| Voir | Disponible | 126 164€ | 146 | Appt. | - | 18.3m2 | 0-RDC | Disponible | 126 164€ | Voir |
| Voir | Optionné | 126 164€ | 148 | Appt. | - | 18.3m2 | 0-RDC | Optionné Mais pas encore vendu 😉 | 126 164€ | Voir |
| Voir | Optionné | 148 420€ | 201 | Appt. | - | 22m2 | 0-RDC | Optionné Mais pas encore vendu 😉 | 148 420€ | Voir |
| Voir | Optionné | 148 420€ | 212 | Appt. | - | 22m2 | 0-RDC | Optionné Mais pas encore vendu 😉 | 148 420€ | Voir |
| Voir | Disponible | 154 434€ | 225 | Appt. | - | 23m2 | 0-RDC | Disponible | 154 434€ | Voir |
| Voir | Disponible | 132 334€ | 2 | Appt. | - | 22m2 | 0-RDC | Disponible | 132 334€ | Voir |
| Voir | Disponible | 135 942€ | 6 | Appt. | - | 22.6m2 | 0-RDC | Disponible | 135 942€ | Voir |
| Voir | Disponible | 126 318€ | 34 | Appt. | - | 21m2 | 0-RDC | Disponible | 126 318€ | Voir |
| Voir | Optionné | 117 897€ | 44 | Appt. | - | 19.6m2 | 0-RDC | Optionné Mais pas encore vendu 😉 | 117 897€ | Voir |
| Voir | Optionné | 110 077€ | 12 | Appt. | - | 18.3m2 | 0-RDC | Optionné Mais pas encore vendu 😉 | 110 077€ | Voir |
| Voir | Disponible | 160 450€ | 115 | Appt. | - | 24m2 | 0-RDC | Disponible | 160 450€ | Voir |
| Voir | Optionné | 125 486€ | 117 | Appt. | - | 18.3m2 | 0-RDC | Optionné Mais pas encore vendu 😉 | 125 486€ | Voir |
| Voir | Disponible | 125 486€ | 120 | Appt. | - | 18.3m2 | 0-RDC | Disponible | 125 486€ | Voir |
| Voir | Disponible | 156 239€ | 125 | Appt. | - | 23.3m2 | 0-RDC | Disponible | 156 239€ | Voir |
| Voir | Optionné | 126 164€ | 150 | Appt. | - | 18.3m2 | 0-RDC | Optionné Mais pas encore vendu 😉 | 126 164€ | Voir |
| Voir | Disponible | 127 968€ | 153 | Appt. | - | 18.6m2 | 0-RDC | Disponible | 127 968€ | Voir |
| Voir | Disponible | 154 434€ | 163 | Appt. | - | 23m2 | 0-RDC | Disponible | 154 434€ | Voir |
| Voir | Optionné | 160 450€ | 215 | Appt. | - | 24m2 | 0-RDC | Optionné Mais pas encore vendu 😉 | 160 450€ | Voir |
| Voir | Disponible | 152 029€ | 216 | Appt. | - | 22.6m2 | 0-RDC | Disponible | 152 029€ | Voir |
| Voir | Optionné | 132 334€ | 3 | Appt. | - | 22m2 | 0-RDC | Optionné Mais pas encore vendu 😉 | 132 334€ | Voir |
| Voir | Disponible | 144 363€ | 5 | Appt. | - | 24m2 | 0-RDC | Disponible | 144 363€ | Voir |