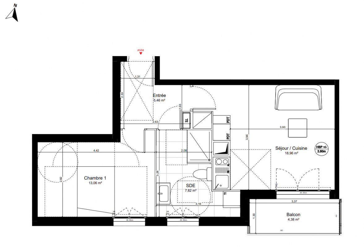
Prix
226 351€
226 351€
Type
Appt. au 5ème
Appt. au 5ème
Pièces
T2
T2
Surface
44.93 m²
44.93 m²
Exposition
-
-
Ville
Goussainville (95190)
Goussainville (95190)
Livraison
2ème trimestre 2028
2ème trimestre 2028
Informations
01 81 80 39 10
01 81 80 39 10
Présentation du programme "LE DOMAINE DES TILLEULS"
Programme neuf Goussainville - 95190