300 039€ (TVA 20%)
263 784€ (TVA 5.5%)
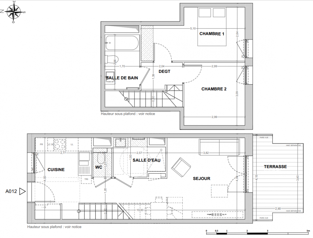
Appt. au 0-RDC
-
64.32 m²
-
Cergy (95000)
2ème trimestre 2027
01 81 80 39 10
Présentation du programme "VIVAREA"
FRAIS DE NOTAIRE OFFERTS + REMISE DE 3 000 EUROS PAR PIECE à partir de l'achat d'un appartement 3 pièces *
La résidence prend place dans le quartier des Doux-Épis de la Plaine des Linandes, au coeur de l'écoquartier "Le Domaine Grandes Terres".
Située à 2 km du RER Cergy Saint-Christophe, votre future résidence neuve signée Crédit Agricole Immobilier et Spirit Immobilier profite de nombreux avantages : écoles (crèche, maternelle, collège), centre commercial, salle de cinéma, commerces, salle de spectacle... Vous disposez également d'un accès immédiat à l'Aren'Park, ses commerces et restaurants, ainsi qu'à de nombreux équipements sportifs et culturels : la patinoire Aren'Ice, le parc de loisirs indoor Koezio, le complexe sportif Salif-Keïta, des cours de tennis... La résidence propose des appartements neufs, du studio au 5 pièces, organisés autour d'espaces verts partagés. Des appartements neufs « prêts à vivre » où le confort des résidents domine. L'ensemble de ce projet immobilier est éligible à la TVA réduite à 5,5% et au prêt à taux zéro. Prix indiqué stationnement inclus et remise incluse.
Contactez-nous dès maintenant !
* Offres promotionnelles valables du 01/03/2026 au 31/03/2026 inclus, dans la limite des stocks disponibles, sous réserve de la signature d'un contrat de réservation d'un logement SPIRIT, à partir d'un 3 pièces. Offres non cumulables avec toute autre offre en cours ou à venir. Remise d'un montant de 3 000 € par pièce principale (pièce hors cuisine et hors salle de bains), soit 9 000 € pour un T3, 12 000 € pour un T4 et 15 000 € pour un T5. Ces remises sont calculées sur la base du prix de vente TTC figurant sur la grille de prix selon le taux de TVA en vigueur et consenties dans le cadre d'un avenant au contrat de réservation. Les frais de notaire sont pris en charge par la SCI, hors frais d'hypothèque, de garantie bancaire et de règlement de copropriété.
Autres logements - du programme "VIVAREA"
| Disponibilité | Prix | No | Genre | Pièces | Surface | Étage | Disponibilité | Prix | ||
|---|---|---|---|---|---|---|---|---|---|---|
| Voir | Disponible | 293 919€ | A101 | Appt. | - | 60.74m2 | 1er | Disponible | 293 919€ | Voir |
| Voir | Disponible | 306 610€ | A304 | Appt. | - | 59.92m2 | 3ème | Disponible | 306 610€ | Voir |
| Voir | Disponible | 310 560€ | A301 | Appt. | - | 60.49m2 | 3ème | Disponible | 310 560€ | Voir |
| Voir | Optionné | 317 660€ | A216 DUPLEX | Appt. | - | 64.11m2 | 2ème | Optionné Mais pas encore vendu 😉 | 317 660€ | Voir |
| Voir | Optionné | 325 559€ | A002 DUPLEX | Appt. | - | 72.18m2 | 0-RDC | Optionné Mais pas encore vendu 😉 | 325 559€ | Voir |
| Voir | Disponible | 344 129€ | A019 DUPLEX | Appt. | - | 76.42m2 Le bon plan | 0-RDC | Disponible | 344 129€ | Voir |
| Voir | Disponible | 321 600€ | C006 | Appt. | - | 68.46m2 | 0-RDC | Disponible | 321 600€ | Voir |
| Voir | Disponible | 295 289€ | A203 | Appt. | - | 60.5m2 | 2ème | Disponible | 295 289€ | Voir |
| Voir | Disponible | 295 149€ | C204 | Appt. | - | 59.97m2 | 2ème | Disponible | 295 149€ | Voir |
| Voir | Optionné | 251 137€ | C103 | Appt. | - | 43.37m2 | 1er | Optionné Mais pas encore vendu 😉 | 251 137€ | Voir |