Prix
250 622€
Type
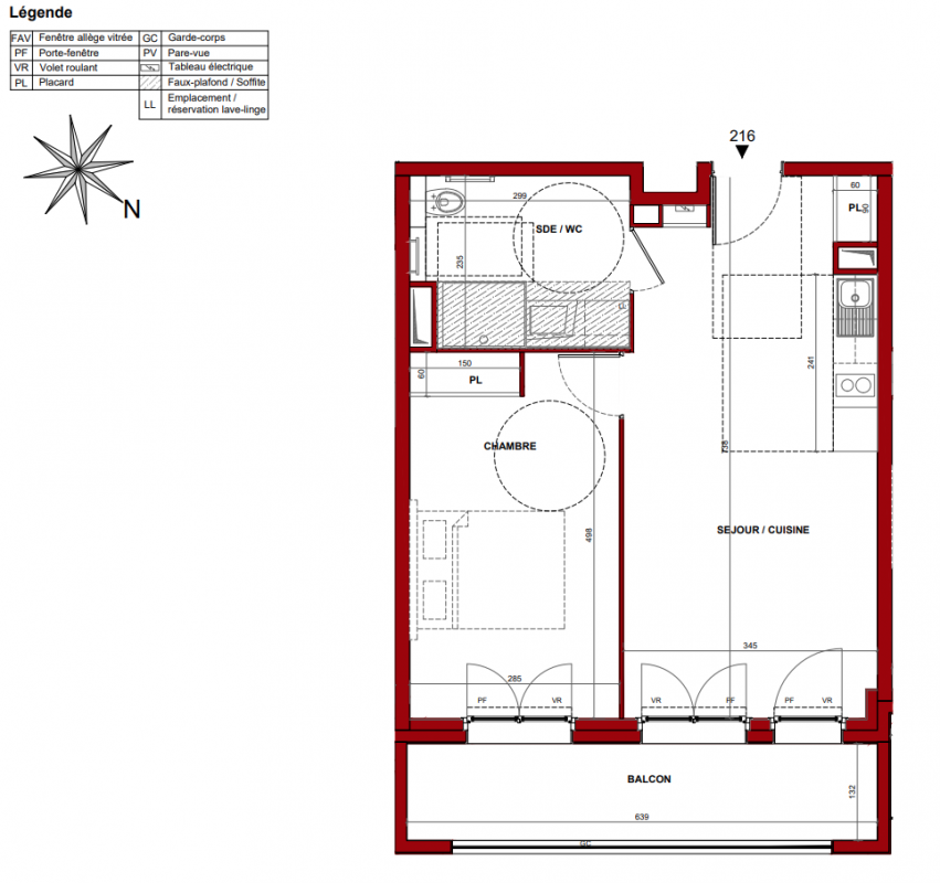
Appt. au 2ème
Pièces
T2
Surface
44 m²
Exposition
Nord
Ville
Bouffémont (95570)
Livraison
1er trimestre 2027
Informations
01 81 80 39 10

Présentation du programme "CASTANEA"

Découvrez 'CASTANEA', une nouvelle résidence services Seniors et choisissez parmi une sélection d'appartements neufs et meublés. Vous pourrez ainsi vous construire un patrimoine sûr et garanti pour vivre ou investir ! Cette dernière, composée de 104 logements du studio au 3 pièces et proposant de nombreux services : restauration, piscine, espaces club... est gérée par un leader de la résidence services seniors Domitys. Pour toute information complémentaire, prenez contact avec nos conseillers de vente ! Pour toutes informations complémentaires, prenez contact avec nous !

Autres logements T2 du programme "CASTANEA"

Disponibilité Prix Genre Pièces Surface Étage
Voir
Disponible
237 737€ Appt. T2 42m2 2ème
Voir
Disponible
237 508€ Appt. T2 42m2 2ème
Voir
Disponible
265 051€ Appt. T2 45m2 3ème
Voir
Disponible
264 480€ Appt. T2 45m2 2ème
Voir
Disponible
237 994€ Appt. T2 43m2 3ème
Voir
Disponible
236 794€ Appt. T2 42m2 5ème
Voir
Disponible
226 823€ Appt. T2 42m2 5ème
Voir
Disponible
226 565€ Appt. T2 42m2 5ème
DO NOT CLICK