440 189€ (TVA 20%)
387 000€ (TVA 5.5%)
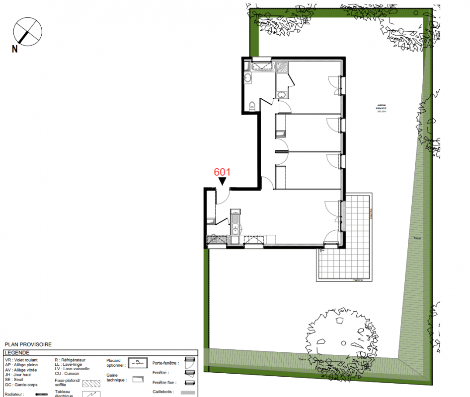
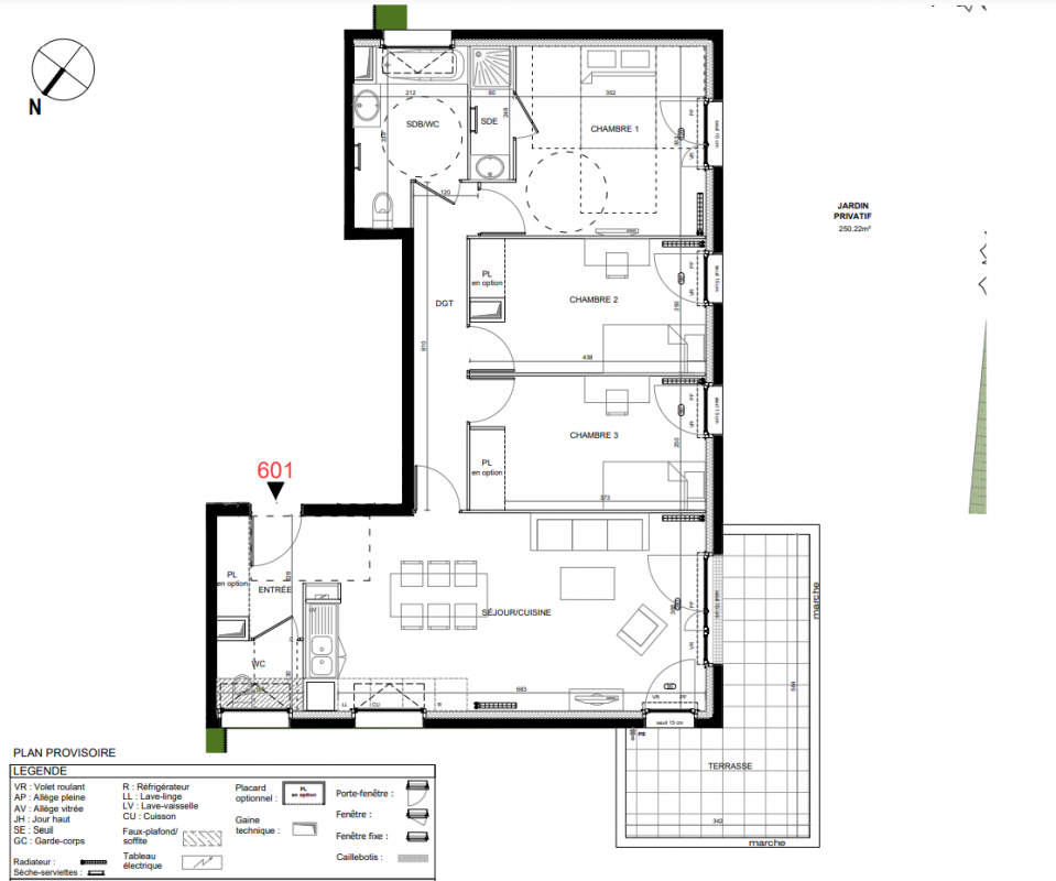
Appt. au 0-RDC
T4
81 m²
Sud-Ouest
Argenteuil (95100)
1er trimestre 2028
01 81 80 39 10
Présentation du programme "LE 5"
Au cœur d’un secteur réputé pour son calme, ponctué de jolies maisons
bordées de jardins arborés et d’immeubles de faible hauteur, le quartier
Val Notre-Dame combine convivialité et qualité de vie.
Dans les rues alentour se trouvent une boulangerie, une épicerie, le stade
Jean Jaurès, une médiathèque ainsi que le Parc des Champioux avec ses
grandes promenades arborées et ses nombreux espaces de jeux pour les
enfants. L’école maternelle Anne Frank et l’école élémentaire Jean-Jacques
Rousseau sont quant à elles à seulement 6 min** à pied de la résidence.
En moins de 10 min** de marche, rejoignez un petit centre-ville qui regroupe
une poste, des banques, un marché, une pharmacie, un supermarché
et de nombreux commerces de proximité.
Les berges de Seine aménagées permettent, quant à elles, de profiter
d’agréables balades sans aller trop loin.

