325 000€ (TVA 20%)
285 730€ (TVA 5.5%)
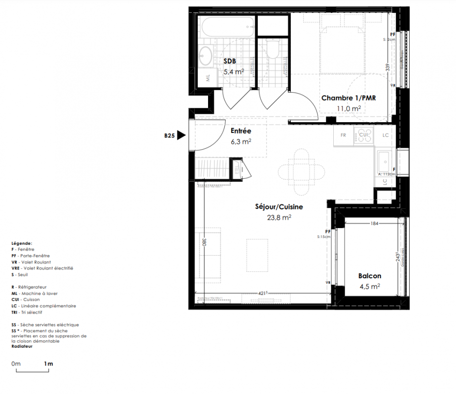
Appt. au 0-RDC
T2
46.5 m²
-
Romainville (93230)
4ème trimestre 2028
01 81 80 39 10
Présentation du programme "ROOJ - COTEAU"
Rooj-Coteau à Romainville, un programme immobilier de deux résidences neuves au coeur du renouveau de la ZAC de l'Horloge.
Logements lumineux, double orientation, coeur d'îlot végétalisé et grands espaces extérieurs privatifs et vues dégagées.
La résidence tend vers le seuil 2028 de la réglementation environnementale 2020, ce qui signifie des logements qui consomment moins d'énergie : factures énergétiques plus faibles et logement plus performant dans le temps.
Performances environnementales élevées, matériaux durables, toitures végétalisées.
Dans un environnement naturel exceptionnel : Canal de l'Ourcq, Corniche des forts, futur jardin du Coteau Groupe scolaire neuf au pied du programme, place Jenny Alpha, marché des Bas-Pays, maison de santé, commerces de proximité sur la rue Gaston Roussel. À 10 min à pied du métro Ligne 5, et future arrivée du T Zen 3. Mobilités douces autour du Grand Chemin, nouvelle artère reliant la Corniche des Forts au canal de l'Ourcq. Un emplacement stratégique, dans un quartier en pleine transformation où la vie culturelle n'est pas en reste : Le Pavillon, médiathèque Romain-Rolland, l'annexe, le FRAC Ile-de-France...
Habiter le Coteau, c'est vivre entre ville et nature.
Autres logements T2 du programme "ROOJ - COTEAU"
| Disponibilité | Prix | No | Genre | Pièces | Surface | Étage | Disponibilité | Prix | ||
|---|---|---|---|---|---|---|---|---|---|---|
| Voir | Optionné | 287 000€ | E1 B202 | Appt. | T2 | 40.78m2 | 2ème | Optionné Mais pas encore vendu 😉 | 287 000€ | Voir |
| Voir | Optionné | 275 000€ | E1 B103 | Appt. | T2 | 41.78m2 | 0-RDC | Optionné Mais pas encore vendu 😉 | 275 000€ | Voir |
| Voir | Disponible | 300 000€ | E1 B402 | Appt. | T2 | 41.95m2 | 4ème | Disponible | 300 000€ | Voir |
| Voir | Optionné | 280 000€ | E5 B12 | Appt. | T2 | 44.5m2 | 0-RDC | Optionné Mais pas encore vendu 😉 | 280 000€ | Voir |
| Voir | Disponible | 285 000€ | E5 B22 | Appt. | T2 | 44.5m2 | 0-RDC | Disponible | 285 000€ | Voir |
| Voir | Optionné | 291 000€ | E5 B32 | Appt. | T2 | 44.5m2 | 0-RDC | Optionné Mais pas encore vendu 😉 | 291 000€ | Voir |
| Voir | Optionné | 278 000€ | E1 A303 | Appt. | T2 | 45.2m2 | 3ème | Optionné Mais pas encore vendu 😉 | 278 000€ | Voir |
| Voir | Disponible | 320 000€ | E5 B15 | Appt. | T2 | 46.4m2 | 0-RDC | Disponible | 320 000€ | Voir |
| Voir | Disponible | 331 000€ | E5 B35 | Appt. | T2 | 46.5m2 | 0-RDC | Disponible | 331 000€ | Voir |
| Voir | Disponible | 336 000€ | E5 B43 | Appt. | T2 | 46.5m2 | 0-RDC | Disponible | 336 000€ | Voir |
| Voir | Optionné | 288 000€ | E5 A15 | Appt. | T2 | 46.9m2 | 1er | Optionné Mais pas encore vendu 😉 | 288 000€ | Voir |
| Voir | Disponible | 307 000€ | E5 A45 | Appt. | T2 | 46.9m2 | 4ème | Disponible | 307 000€ | Voir |
| Voir | Optionné | 290 000€ | E1 B105 | Appt. | T2 | 47.35m2 | 1er | Optionné Mais pas encore vendu 😉 | 290 000€ | Voir |
| Voir | Optionné | 296 000€ | E1 B205 | Appt. | T2 | 47.35m2 | 2ème | Optionné Mais pas encore vendu 😉 | 296 000€ | Voir |
| Voir | Disponible | 316 000€ | E1 B302 | Appt. | T2 | 47.37m2 | 3ème | Disponible | 316 000€ | Voir |