Ce lot n’est plus disponible chez VIANOVA ou est vendu.

Vous pouvez revenir dans 24h pour vérifier le stock à jour ou contacter un conseiller Vianova pour vérifier le stock en direct.
Vous pouvez également continuer votre recherche sur notre site « ici ».

Prix
319 622€  (TVA 20%)
281 001€  (TVA 5.5%)
Type
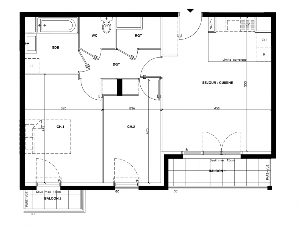
Appt. au 2ème
Pièces
T3
Surface
60.84 m²
Exposition
-
Ville
Le Blanc-Mesnil (93150)
Livraison
3ème trimestre 2026
Informations
01 81 80 39 10

Présentation du programme "98 République"

Une résidence signée TRIANON PROMOTION & ATOME PROMOTION, en plein centre-ville du Blanc-Mesnil.

Située à moins de 10 minutes à pied de la gare du RER B, la résidence « 98 République » possède tous les avantages d'une belle adresse conviviale : écoles, commerces et services à quelques pas.

40 appartements, du 2 au 5 pièces, ont été conçus pour privilégier le confort et la luminosité ; ils disposent tous d'un espace extérieur à usage privatif (jardin, balcon ou terrasse) et la plupart bénéficieront d’un parking sécurisé en sous-sol.

Autres logements T3 du programme "98 République"

Disponibilité Prix Genre Pièces Surface Étage
Voir
Disponible
328 721€ Appt. T3 63.28m2 2ème
Voir
Disponible
323 034€ Appt. T3 63.28m2 1er
DO NOT CLICK