Prix
312 000€
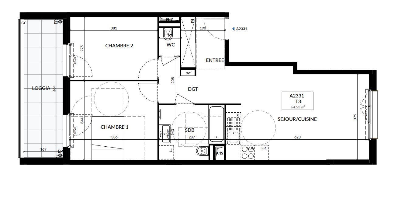
Type
Appt. au 3ème
Pièces
T3
Surface
64.53 m²
Exposition
Est
Ville
La Courneuve (93120)
Livraison
2ème trimestre 2026
Informations
01 81 80 39 10

Présentation du programme "NOVA GREEN"

Nouveau ! Appartement décoré à visiter ! Appartements Familiaux OGIC et SEDFIELD s'associent pour réaliser NOVA GREEN, une nouvelle résidence éligible à la TVA réduite 5,5% qui proposera des appartements neufs du studio au 5 pièces avec des prestations de qualité. NOVA GREEN s'élèvera à proximité des transports, des commerces et des établissements scolaires. Tous les logements seront prolongés par un balcon ou une terrasse, et certains d'entre eux profiteront d'orientations multiples. Au-delà des pièces de vie spacieuses et lumineuses, vous pourrez profiter d'un cadre de vie verdoyant grâce à un coeur d'ilot généreux offrant de nombreux espaces verts.

Autres logements T3 du programme "NOVA GREEN"

Disponibilité Prix Genre Pièces Surface Étage
Voir
Disponible
318 000€ Appt. T3 64.08m2 6ème
Voir
Disponible
305 000€ Appt. T3 64.52m2 1er
Voir
Disponible
275 000€ Appt. T3 61.13m2 3ème
DO NOT CLICK