Prix
174 000€
Type
Appt. au 1er
Pièces
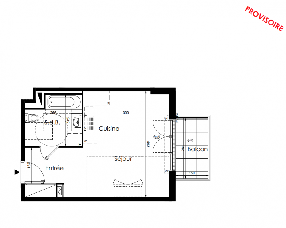
Studio
Surface
31.38 m²
Exposition
Est
Ville
Ozoir-la-Ferrière (77330)
Livraison
1er trimestre 2029
Informations
01 81 80 39 10

Présentation du programme "Avenue 34"

Découvrez une belle adresse, au cœur d’Ozoir-la-Ferrière
Un territoire à fort potentiel économique, entre Paris et
Marne-la-ValléeÀ seulement 25 km de Paris et
20 minutes de Marne-la-Vallée en voiture,
Ozoir-la-Ferrière occupe une position stratégique au cœur de l’Est francilien.
La commune s’appuie sur la vitalité de la zone économique des Portes
Briardes, où se concentrent des entreprises de logistique, de
transport, de services et de commerce, ainsi que sur les projets de
développement menés par les collectivités voisines.En plein centre-ville, la résidence profite d’une excellente
desserte : le RER E, accessible en 5 minutes à vélo, relie
directement Paris en moins de 40 minutes. Les axes routiers majeurs (N4, A4,
N104) facilitent les déplacements vers les pôles d’emploi de Marne-la-Vallée,
du Val d’Europe, ainsi que vers Roissy-CDG.Cette accessibilité, alliée à un cadre de vie recherché,
attire étudiants, jeunes actifs et familles, garantissant un fort
potentiel locatif et une valorisation patrimoniale durable. 











* Source : Google Maps

Autres logements Studio du programme "Avenue 34"

Disponibilité Prix Genre Pièces Surface Étage
Voir
Optionné
159 000€ Appt. Studio 27.49m2 1er
Voir
Optionné
161 000€ Appt. Studio 27.49m2 2ème
Voir
Optionné
164 000€ Appt. Studio 27.49m2 3ème
Voir
Optionné
176 000€ Appt. Studio 31.38m2 2ème
Voir
Optionné
179 000€ Appt. Studio 31.38m2 3ème
DO NOT CLICK