195 000€
Appt. au 0-RDC
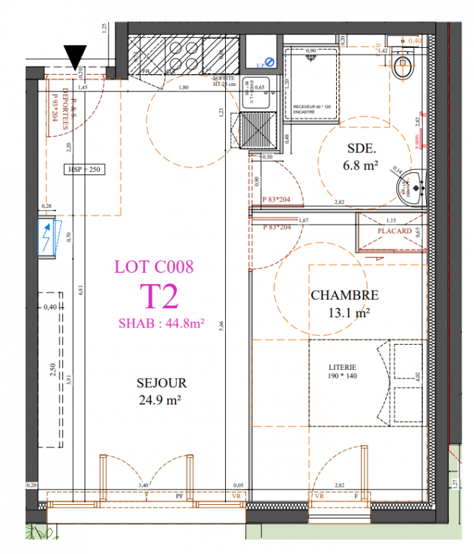
T2
44.8 m²
-
Messy (77410)
3ème trimestre 2027
01 81 80 39 10
Présentation du programme "Le Domaine des Templiers"
Devenez propriétaire pour 1049,35€/mois* à MESSY !
Frais de notaire et courtage OFFERTS* jusqu’au 31 octobre + conditions exceptionnelles grâce au Nouveau Prêt à Taux 0%* 2025 pour achetez votre APPARTEMENT.
Au cœur de la Seine-et-Marne, dans le village de Messy, European Homes vous présente sa toute nouvelle résidence, parfaitement intégrée dans le cadre charmant et verdoyant de la Goële. À 15 minutes** en voiture du Grand Roissy-Le Bourget, reconnu comme le 4ème bassin d’emploi d’Ile-de-France***, ce projet immobilier combine le dynamisme de la vie citadine avec la tranquillité d’une vie paisible à la campagne. Messy est une commune qui bénéficie d'un environnement paysager exceptionnel avec ses basses collines, ses bois et cours d'eau, idéal pour ceux qui souhaite se ressourcer au calme. Le terroir, principalement dédié à la culture céréalière, reflète le charme rural de cette petite région. A l’angle de la rue des Templiers et de Pilouvet, « Le Domaine des Templiers » est idéalement situé entre Claye-Souilly à 5 minutes**, Mitry-Mory et Villeparisis à 15 minutes** en voiture.
Pour ceux qui préfèrent les transports en commun, la Gare du Nord est accessible en une heure** environ via le RER B ou la ligne K depuis la gare de Mitry-Claye, située à 9 minutes** en bus, ligne 2130. Les familles apprécieront la proximité avec la crèche « Les P’tits Loups » et les écoles maternelle et primaire « Jehan de Brief », à seulement 8 minutes** à pied, ainsi que le collège « Paul Langevin » et le lycée « Honoré de Balzac » à 20 minutes** en bus, ligne 2130.
Les services essentiels, tels qu'une supérette, La Poste et la Mairie, sont à moins de 5 minutes** à pied, tandis que le Carrefour et le centre commercial Claye-Souilly se trouvent à 10 minutes** en voiture. Un médecin généraliste et une pharmacie sont également accessibles en 6 minutes** en voiture, assurant un cadre de vie pratique et confortable pour tous les résidents.
La résidence « Le Domaine des Templiers » propose 32 appartements du 2 au 4 pièces répartis sur 2 étages, chacun conçu avec soin pour offrir confort et qualité. Les appartements au rez-de-chaussée bénéficient de jardins privatifs, tandis que ceux des étages supérieurs profitent de balcons et loggias offrant une vue dégagée sur les alentours. De plus, chaque logement dispose de deux places de stationnement et d'un local à vélo commun.
Fort de son savoir-faire de près de 50 ans en immobilier résidentiel, European Homes réinvente une fois de