Prix
118 700€
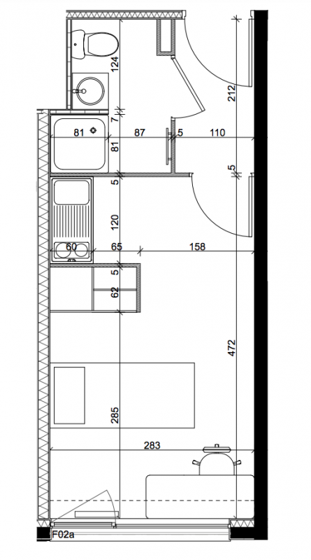
Type
Appt. au 6ème
Pièces
Studio
Surface
18.6 m²
Exposition
Sud
Ville
Paris 19ème (75019)
Livraison
1er trimestre 2025
Informations
01 81 80 39 10

Présentation du programme "Résidence Étudiante Studéa Paris Tessier"

Autres logements Studio du programme "Résidence Étudiante Studéa Paris Tessier"

Disponibilité Prix Genre Pièces Surface Étage
Voir
Disponible
117 800€ Appt. Studio 18.27m2 5ème
Voir
Disponible
118 000€ Appt. Studio 23.12m2 2ème
DO NOT CLICK