950 000€
Appt. au 1er
-
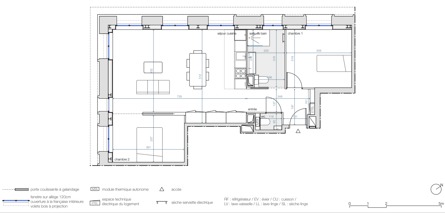
68.8 m²
Ouest
Paris 14ème (75014)
4ème trimestre 2028
01 81 80 39 10
Présentation du programme "Pavillon Raspail"
Un nouveau lieu de vie au cœur du quartier Saint-Vincent-de-Paul, rue Boissonade.Au nord du 14ᵉ arrondissement, le quartier de Saint-Vincent-de-Paul se transforme pour inventer une nouvelle manière d’habiter Paris. Un lieu rare, à l’écart de l’agitation urbaine, où le calme, la lumière et la nature s’invitent au quotidien, en plein cœur de la ville.Proche du Jardin du Luxembourg et du métro Raspail, Vianova Résidentiel, accompagné des architectes Lacaton & Vassal, réhabilite l’ancienne maternité Lelong pour lui offrir une nouvelle vie. Fidèle à l’histoire du site, le projet s’inscrit dans une longue tradition d’accueil, de bienveillance et d’attention portée aux usages.Le programme propose 82 logements, du studio au 5 pièces, conçus pour offrir des espaces généreux, lumineux et évolutifs. Chaque appartement bénéficie d’un soin particulier apporté à la qualité des volumes, à la lumière naturelle et aux vues, dans une architecture qui privilégie la liberté d’usage et le confort de vie.La surélévation contemporaine, légère et transparente, accueille des logements prolongés par de véritables espaces extérieurs : jardins d’hiver, balcons ou terrasses. Ces prolongements offrent une relation privilégiée avec le ciel et le paysage, et permettent de vivre dedans-dehors au fil des saisons, dans un cadre rare à Paris.Pensé comme un village urbain, le projet favorise les rencontres et le vivre-ensemble. Les espaces communs constituent le cœur vivant de la résidence, des lieux de partage où chacun est libre de participer ou simplement de profiter d’un environnement apaisé et convivial.Porté par une ambition environnementale forte, le projet valorise la réhabilitation du bâtiment existant, le réemploi des matériaux et des performances énergétiques élevées, tout en encourageant les mobilités douces et une gestion responsable des ressources.Ancienne maternité, le site de Saint-Vincent-de-Paul connaît aujourd’hui une nouvelle renaissance. Une invitation à habiter Paris autrement : plus librement, plus durablement, plus humainement.
Autres logements - du programme "Pavillon Raspail"
| Disponibilité | Prix | No | Genre | Pièces | Surface | Étage | Disponibilité | Prix | ||
|---|---|---|---|---|---|---|---|---|---|---|
| Voir | Disponible | 970 000€ | A32 | Appt. | - | 68.8m2 | 3ème | Disponible | 970 000€ | Voir |
| Voir | Optionné | 1 055 000€ | D32 | Appt. | - | 74m2 | 3ème | Optionné Mais pas encore vendu 😉 | 1 055 000€ | Voir |
| Voir | Optionné | 700 000€ | A31 | Appt. | - | 49.9m2 | 3ème | Optionné Mais pas encore vendu 😉 | 700 000€ | Voir |
| Voir | Disponible | 1 770 000€ | C42 | Appt. | - | 102.6m2 | 4ème | Disponible | 1 770 000€ | Voir |
| Voir | Optionné | 1 350 000€ | C67 | Appt. | - | 76.4m2 | 6ème | Optionné Mais pas encore vendu 😉 | 1 350 000€ | Voir |
| Voir | Disponible | 700 000€ | A21 | Appt. | - | 49.9m2 | 2ème | Disponible | 700 000€ | Voir |
| Voir | Disponible | 560 000€ | B44 | Appt. | - | 33.2m2 | 4ème | Disponible | 560 000€ | Voir |
| Voir | Disponible | 960 000€ | A22 | Appt. | - | 68.8m2 | 2ème | Disponible | 960 000€ | Voir |
| Voir | Disponible | 870 000€ | C51 | Appt. | - | 48.5m2 | 5ème | Disponible | 870 000€ | Voir |
| Voir | Disponible | 1 425 000€ | A23 | Appt. | - | 106.9m2 | 2ème | Disponible | 1 425 000€ | Voir |
| Voir | Disponible | 2 240 000€ | B51 | Appt. | - | 123.9m2 | 5ème | Disponible | 2 240 000€ | Voir |
| Voir | Disponible | 1 360 000€ | D31 | Appt. | - | 100.4m2 | 3ème | Disponible | 1 360 000€ | Voir |
| Voir | Disponible | 840 000€ | C41 | Appt. | - | 48.5m2 | 4ème | Disponible | 840 000€ | Voir |
| Voir | Disponible | 695 000€ | D23 | Appt. | - | 49.4m2 | 2ème | Disponible | 695 000€ | Voir |
| Voir | Disponible | 1 830 000€ | C52 | Appt. | - | 102.6m2 | 5ème | Disponible | 1 830 000€ | Voir |
| Voir | Disponible | 1 045 000€ | D22 | Appt. | - | 74m2 | 2ème | Disponible | 1 045 000€ | Voir |
| Voir | Disponible | 1 010 000€ | D71 | Appt. | - | 53.2m2 | 7ème | Disponible | 1 010 000€ | Voir |
| Voir | Disponible | 1 280 000€ | C55 | Appt. | - | 75.9m2 | 5ème | Disponible | 1 280 000€ | Voir |
| Voir | Optionné | 1 220 000€ | B53 | Appt. | - | 75.9m2 | 5ème | Optionné Mais pas encore vendu 😉 | 1 220 000€ | Voir |
| Voir | Disponible | 580 000€ | B54 | Appt. | - | 33.2m2 | 5ème | Disponible | 580 000€ | Voir |
| Voir | Disponible | 500 000€ | B67 | Appt. | - | 25.5m2 | 6ème | Disponible | 500 000€ | Voir |
| Voir | Disponible | 1 230 000€ | A63 | Appt. | - | 69.4m2 | 6ème | Disponible | 1 230 000€ | Voir |
| Voir | Optionné | 700 000€ | D33 | Appt. | - | 49.4m2 | 3ème | Optionné Mais pas encore vendu 😉 | 700 000€ | Voir |
| Voir | Disponible | 580 000€ | C63 | Appt. | - | 32.9m2 | 6ème | Disponible | 580 000€ | Voir |
| Voir | Disponible | 1 345 000€ | D21 | Appt. | - | 100.4m2 | 2ème | Disponible | 1 345 000€ | Voir |
| Voir | Optionné | 1 080 000€ | D52 | Appt. | - | 60.4m2 | 5ème | Optionné Mais pas encore vendu 😉 | 1 080 000€ | Voir |
| Voir | Disponible | 1 640 000€ | B56 | Appt. | - | 89.5m2 | 5ème | Disponible | 1 640 000€ | Voir |
| Voir | Disponible | 740 000€ | C44 | Appt. | - | 45.7m2 | 4ème | Disponible | 740 000€ | Voir |
| Voir | Disponible | 1 435 000€ | A33 | Appt. | - | 106.9m2 | 3ème | Disponible | 1 435 000€ | Voir |
| Voir | Disponible | 695 000€ | A11 | Appt. | - | 49.9m2 | 1er | Disponible | 695 000€ | Voir |
| Voir | Optionné | 1 590 000€ | B46 | Appt. | - | 89.5m2 | 4ème | Optionné Mais pas encore vendu 😉 | 1 590 000€ | Voir |
| Voir | Disponible | 470 000€ | A01 | Appt. | - | 35.7m2 | 0-RDC | Disponible | 470 000€ | Voir |
| Voir | Disponible | 2 140 000€ | C73 | Appt. | - | 117.5m2 | 7ème | Disponible | 2 140 000€ | Voir |
| Voir | Disponible | 1 630 000€ | B41 | Appt. | - | 95.4m2 | 4ème | Disponible | 1 630 000€ | Voir |
| Voir | Disponible | 1 290 000€ | C47 | Appt. | - | 76.4m2 | 4ème | Disponible | 1 290 000€ | Voir |
| Voir | Disponible | 1 720 000€ | D61 | Appt. | - | 96.6m2 | 6ème | Disponible | 1 720 000€ | Voir |
| Voir | Disponible | 570 000€ | B55 | Appt. | - | 32.9m2 | 5ème | Disponible | 570 000€ | Voir |
| Voir | Disponible | 1 170 000€ | B43 | Appt. | - | 75.9m2 | 4ème | Disponible | 1 170 000€ | Voir |
| Voir | Disponible | 1 210 000€ | A53 | Appt. | - | 69.4m2 | 5ème | Disponible | 1 210 000€ | Voir |
| Voir | Disponible | 880 000€ | C61 | Appt. | - | 48.5m2 | 6ème | Disponible | 880 000€ | Voir |
| Voir | Disponible | 550 000€ | B45 | Appt. | - | 32.9m2 | 4ème | Disponible | 550 000€ | Voir |
| Voir | Optionné | 590 000€ | B64 | Appt. | - | 33.2m2 | 6ème | Optionné Mais pas encore vendu 😉 | 590 000€ | Voir |
| Voir | Disponible | 1 010 000€ | A52 | Appt. | - | 55m2 | 5ème | Disponible | 1 010 000€ | Voir |
| Voir | Disponible | 490 000€ | B57 | Appt. | - | 25.5m2 | 5ème | Disponible | 490 000€ | Voir |
| Voir | Disponible | 1 640 000€ | D41 | Appt. | - | 96.6m2 | 4ème | Disponible | 1 640 000€ | Voir |
| Voir | Disponible | 1 040 000€ | D42 | Appt. | - | 60.3m2 | 4ème | Disponible | 1 040 000€ | Voir |
| Voir | Disponible | 1 690 000€ | D51 | Appt. | - | 96.6m2 | 5ème | Disponible | 1 690 000€ | Voir |
| Voir | Disponible | 1 320 000€ | C46 | Appt. | - | 76.5m2 | 4ème | Disponible | 1 320 000€ | Voir |
| Voir | Disponible | 770 000€ | C54 | Appt. | - | 45.7m2 | 5ème | Disponible | 770 000€ | Voir |
| Voir | Disponible | 1 330 000€ | C57 | Appt. | - | 76.4m2 | 5ème | Disponible | 1 330 000€ | Voir |
| Voir | Disponible | 960 000€ | A42 | Appt. | - | 55m2 | 4ème | Disponible | 960 000€ | Voir |
| Voir | Optionné | 1 130 000€ | C65 | Appt. | - | 63.4m2 | 6ème | Optionné Mais pas encore vendu 😉 | 1 130 000€ | Voir |
| Voir | Disponible | 685 000€ | D13 | Appt. | - | 49.4m2 | 1er | Disponible | 685 000€ | Voir |
| Voir | Optionné | 1 020 000€ | B62 | Appt. | - | 54.2m2 | 6ème | Optionné Mais pas encore vendu 😉 | 1 020 000€ | Voir |
| Voir | Optionné | 1 230 000€ | C66 | Appt. | - | 66.4m2 | 6ème | Optionné Mais pas encore vendu 😉 | 1 230 000€ | Voir |
| Voir | Disponible | 570 000€ | C53 | Appt. | - | 32.9m2 | 5ème | Disponible | 570 000€ | Voir |
| Voir | Disponible | 1 350 000€ | C56 | Appt. | - | 76.5m2 | 5ème | Disponible | 1 350 000€ | Voir |
| Voir | Optionné | 1 490 000€ | A43 | Appt. | - | 85.1m2 | 4ème | Optionné Mais pas encore vendu 😉 | 1 490 000€ | Voir |
| Voir | Optionné | 1 010 000€ | D53 | Appt. | - | 54.9m2 | 5ème | Optionné Mais pas encore vendu 😉 | 1 010 000€ | Voir |
| Voir | Disponible | 880 000€ | B47 | Appt. | - | 49.5m2 | 4ème | Disponible | 880 000€ | Voir |
| Voir | Disponible | 1 040 000€ | A51 | Appt. | - | 55.6m2 | 5ème | Disponible | 1 040 000€ | Voir |
| Voir | Disponible | 1 250 000€ | C45 | Appt. | - | 75.9m2 | 4ème | Disponible | 1 250 000€ | Voir |
| Voir | Disponible | 1 870 000€ | C62 | Appt. | - | 102.6m2 | 6ème | Disponible | 1 870 000€ | Voir |
| Voir | Disponible | 780 000€ | C64 | Appt. | - | 45.7m2 | 6ème | Disponible | 780 000€ | Voir |
| Voir | Disponible | 550 000€ | C43 | Appt. | - | 32.9m2 | 4ème | Disponible | 550 000€ | Voir |
| Voir | Disponible | 890 000€ | D43 | Appt. | - | 50.9m2 | 4ème | Disponible | 890 000€ | Voir |
| Voir | Disponible | 930 000€ | A41 | Appt. | - | 51.6m2 | 4ème | Disponible | 930 000€ | Voir |