Prix
309 000€
Type
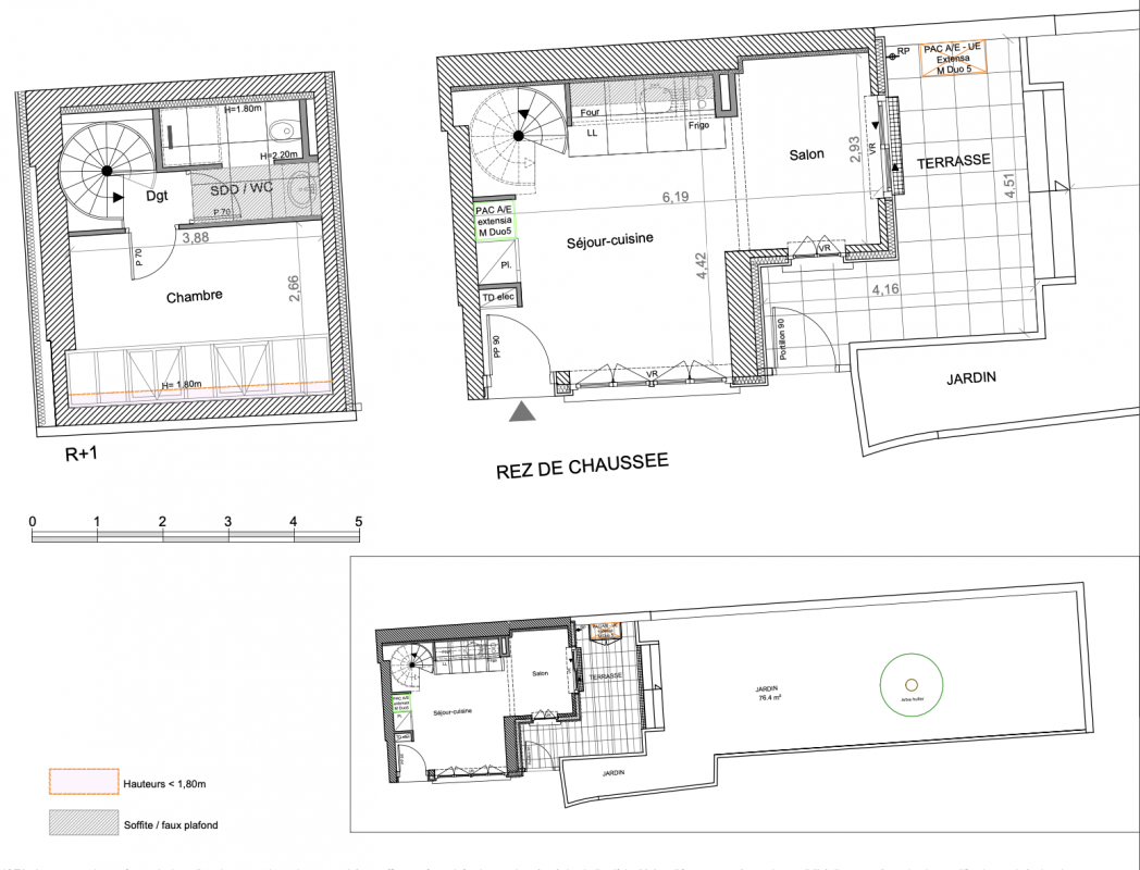
Maison au 0-RDC
Pièces
T2
Surface
36 m²
Exposition
Sud-Est
Ville
Rueil-Malmaison (92500)
Livraison
4ème trimestre 2026
Informations
01 81 80 39 10

Présentation du programme "107 PAUL DOUMER"

Situé au 107 avenue Paul Doumer à Rueil-Malmaison, cet immeuble en réhabilitation conjugue le charme de l'ancien avec le confort moderne. À quelques minutes à pied de la gare RER A, il offre un accès rapide au centre de Paris tout en profitant du cadre paisible de Rueil. Le quartier est animé par une variété de commerces de proximité et dispose d'établissements scolaires, d'espaces verts et de nombreux services. Parfait pour les familles et les actifs, ce projet propose une qualité de vie exceptionnelle au cœur d'une des villes les plus prisées de l'ouest parisien.Les appartement réhabilités offres de beau volumes et hauteur sous plafond.Les maisons sur jardin vous projetterons dans un petit écrin de verdure en coeur de ville. Chaque logement a été soigneusement rénové pour préserver le caractère authentique des lieux, avec des parquets, des moulures élégantes et de belles hauteurs sous plafond. Ces espaces lumineux et fonctionnels sont réaménagés pour répondre aux exigences modernes : cuisines équipées, salles de bains contemporaines et prestations haut de gamme. Certains appartements bénéficieront de balcons ou terrasses offrant des vues dégagées.

Autres logements T2 du programme "107 PAUL DOUMER"

Pas de logements disponibles
DO NOT CLICK