Prix
285 000€
285 000€
Type
Appt. au 6ème
Appt. au 6ème
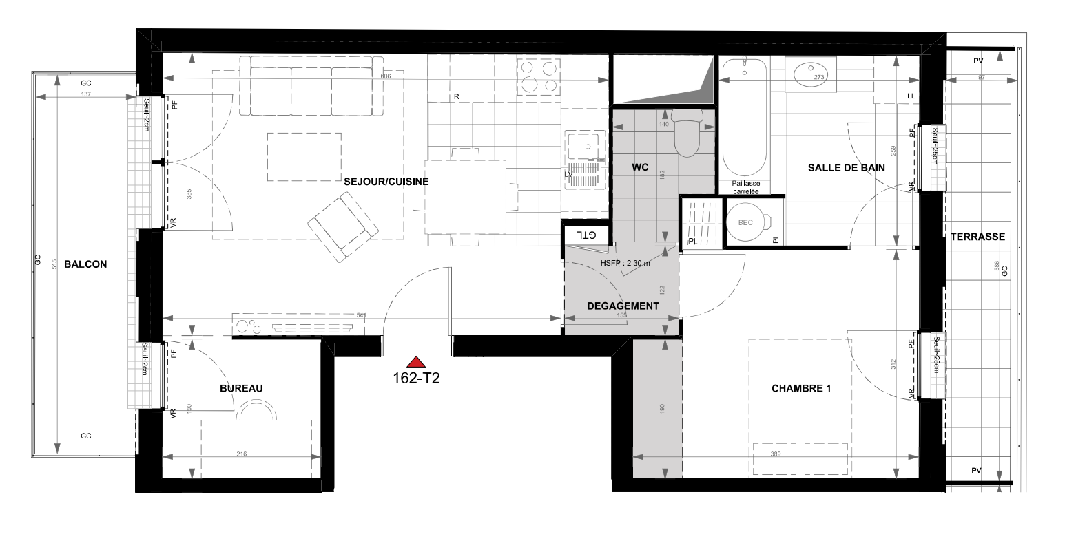
Pièces
T2
T2
Surface
48 m²
48 m²
Exposition
Sud
Sud
Ville
Gennevilliers (92230)
Gennevilliers (92230)
Livraison
4ème trimestre 2027
4ème trimestre 2027
Informations
01 81 80 39 10
01 81 80 39 10
Présentation du programme "REPLAY"
dans un quartier qui offre de nouveaux commerces et des accès pratiques et rapides à la capitale. Le tramway T1 situé au pied du programme permet de rejoindre le métro 13 en 10 minutes puis Paris. REPLAY est une renaissance. Une nouvelle histoire. De cet ancien immeuble de bureaux, nous conservons la structure générale et y aménageons de grands lofts à l'inspiration industrielle aux superbes vues sur Paris (Tour Eiffel, Sacré Coeur, La Défense).