424 800€ (TVA 20%)
373 470€ (TVA 5.5%)
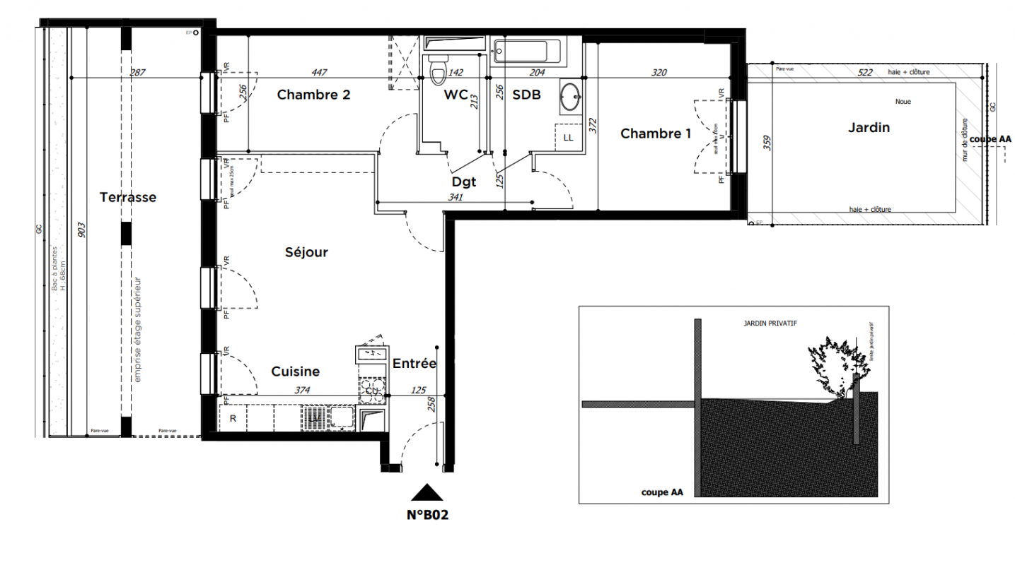
Appt. au 0-RDC
T3
66.15 m²
Sud
Fontenay-aux-Roses (92260)
4ème trimestre 2028
01 81 80 39 10
Présentation du programme "Programme neuf Fontenay-aux-Roses (92260)"
NOUVEAU à FONTENAY-AUX-ROSES ! Soyez parmi les premiers à choisir votre logement neuf avec espace extérieur et parking ! Et en plus, devenez propriétaire pour le même prix que votre loyer, grâce à la TVA réduite à 5,5% ! Découvrez nos appartements du 2 au 5 pièces, certains bénéficiant d'une double exposition qui assure un maximum de lumière naturelle. Chaque logement bénéficie d'un espace extérieur, qu'il s'agisse d'un balcon, d'une terrasse ou d'un jardin privatif, parfait pour profiter des beaux jours dès qu'ils arrivent. La résidence est également équipée d'un parking en sous-sol ainsi qu'un local à vélos. L'architecture de la résidence rend hommage au style Art Déco, si caractéristique de Fontenay-aux-Roses, avec un design raffiné et une façade en pierre de qualité. Située au cœur du nouveau quartier des Paradis, elle offre une accessibilité optimale avec l'arrêt de bus "Maison de Quartier" au pied de la résidence, le RER B Fontenay-aux-Roses à seulement 750 mètres et la station Sceaux à 600 mètres. À moins de dix minutes à pied, vous trouverez une crèche, une école élémentaire, un supermarché et de nombreux commerces de proximité. À terme, le quartier accueillera également un terrain de sport et une salle de boxe, participant au dynamisme de ce renouvellement urbain.Fontenay-aux-Roses se distingue par ses nombreux espaces verts et parcs, offrant un cadre de vie à taille humaine où nature et ville cohabitent harmonieusement. La ville séduit par son environnement calme et familial, idéal pour y installer son quotidien.Contactez dès maintenant un de nos conseillers pour découvrir tous nos appartements neufs à Fontenay-aux-Roses et être parmi les premiers à choisir le logement de vos rêves !
Autres logements T3 du programme "Programme neuf Fontenay-aux-Roses (92260)"
| Disponibilité | Prix | No | Genre | Pièces | Surface | Étage | Disponibilité | Prix | ||
|---|---|---|---|---|---|---|---|---|---|---|
| Voir | Disponible | 411 800€ | A03 | Appt. | T3 | 64.06m2 | 0-RDC | Disponible | 411 800€ | Voir |
| Voir | Disponible | 442 500€ | A05 | Appt. | T3 | 74.22m2 | 0-RDC | Disponible | 442 500€ | Voir |
| Voir | Disponible | 401 100€ | A13 | Appt. | T3 | 64.06m2 | 1er | Disponible | 401 100€ | Voir |
| Voir | Disponible | 409 400€ | A23 | Appt. | T3 | 64.06m2 | 2ème | Disponible | 409 400€ | Voir |
| Voir | Disponible | 420 000€ | A31 | Appt. | T3 | 63.33m2 | 3ème | Disponible | 420 000€ | Voir |
| Voir | Disponible | 424 800€ | A32 | Appt. | T3 | 64.12m2 | 3ème | Disponible | 424 800€ | Voir |
| Voir | Disponible | 421 200€ | A33 | Appt. | T3 | 64.7m2 | 3ème | Disponible | 421 200€ | Voir |
| Voir | Disponible | 397 600€ | B01 | Appt. | T3 | 64.02m2 | 0-RDC | Disponible | 397 600€ | Voir |
| Voir | Disponible | 405 900€ | B11 | Appt. | T3 | 64.01m2 | 1er | Disponible | 405 900€ | Voir |
| Voir | Disponible | 420 000€ | B12 | Appt. | T3 | 66.15m2 | 1er | Disponible | 420 000€ | Voir |
| Voir | Disponible | 388 100€ | B14 | Appt. | T3 | 62.01m2 | 1er | Disponible | 388 100€ | Voir |
| Voir | Disponible | 416 500€ | B21 | Appt. | T3 | 63.4m2 | 2ème | Disponible | 416 500€ | Voir |
| Voir | Disponible | 424 800€ | B31 | Appt. | T3 | 63.37m2 | 3ème | Disponible | 424 800€ | Voir |
| Voir | Disponible | 444 900€ | B32 | Appt. | T3 | 66.15m2 | 3ème | Disponible | 444 900€ | Voir |
| Voir | Disponible | 400 000€ | B34 | Appt. | T3 | 62.01m2 | 3ème | Disponible | 400 000€ | Voir |
| Voir | Disponible | 411 800€ | B42 | Appt. | T3 | 61.2m2 | 4ème | Disponible | 411 800€ | Voir |
| Voir | Disponible | 463 800€ | B52 | Appt. | T3 | 65.02m2 | 5ème | Disponible | 463 800€ | Voir |
| Voir | Disponible | 472 100€ | B62 | Appt. | T3 | 65.02m2 | 6ème | Disponible | 472 100€ | Voir |
| Voir | Disponible | 479 100€ | B72 | Appt. | T3 | 65.16m2 | 7ème | Disponible | 479 100€ | Voir |
| Voir | Disponible | 489 800€ | B81 | Appt. | T3 | 66.1m2 | 8ème | Disponible | 489 800€ | Voir |