Ce lot n’est plus disponible chez VIANOVA ou est vendu.

Vous pouvez revenir dans 24h pour vérifier le stock à jour ou contacter un conseiller Vianova pour vérifier le stock en direct.
Vous pouvez également continuer votre recherche sur notre site « ici ».

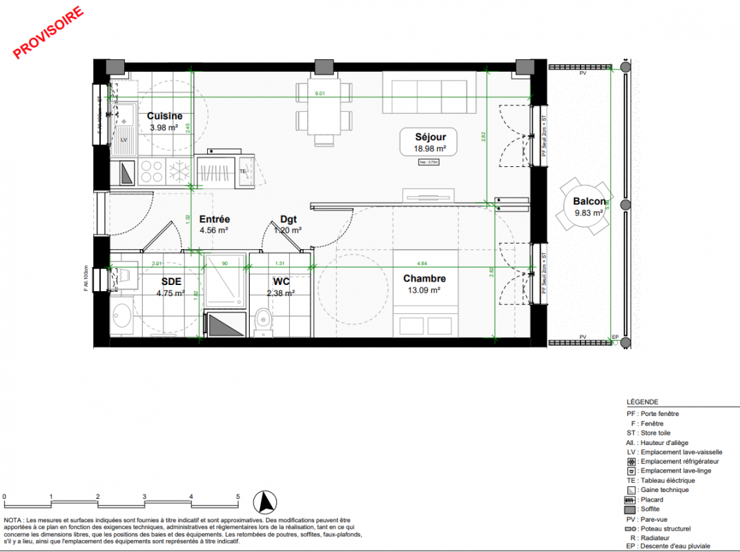
Prix
332 000€
Type
Appt. au 5ème
Pièces
T2
Surface
48.96 m²
Exposition
Est
Ville
Bagneux (92220)
Livraison
3ème trimestre 2028
Informations
01 81 80 39 10

Présentation du programme "LE HAUT BOIS"


 Revêtement de sol en parquet bois contrecollé dans les entrées, séjours et chambres
Carrelage en grès cérame dans les cuisines, salles de bain et d'eau
Salle de bains et salle d'eau avec faïence toute hauteur au droit de chaque côté de la baignoire/douche, meuble vasque avec miroir, bandeau lumineux et sèche-serviettes
Lave-mains dans les WC indépendants
Menuiseries extérieures bois
Chauffage : raccordé au réseau de chaleur urbain

Autres logements T2 du programme "LE HAUT BOIS"

Pas de logements disponibles
DO NOT CLICK