297 000€
Appt. au 3ème
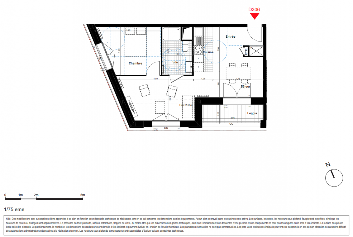
T2
49.88 m²
-
Palaiseau (91120)
4ème trimestre 2028
01 81 80 39 10
Présentation du programme "Emulation – Le Central"
Pensé pour répondre aux besoins du quotidien, Le Central à Palaiseau accueille commerces, services, restaurants et cafés, contribuant à une vie de quartier active. La place de l'Agronomie est destinée à accueillir tout au long de l'année des événements culturels, renforçant l'attractivité et le dynamisme du quartier.
Le quartier Le Central associe qualité de vie et mobilité facilitée. La résidence bénéficie d'une situation privilégiée, à quelques minutes à pied du métro ligne 18, reliant notamment l'aéroport d'Orly, ainsi que du RER B, permettant de rejoindre facilement les pôles économiques et universitaires environnants.
Au sein de ce nouvel environnement urbain, la résidence Emulation à Palaiseau propose une offre de logements variée, composée d'appartements du studio au 5 pièces et de duplex. Les logements, spacieux et lumineux, profitent d'orientations multiples et de vues dégagées. Les performances énergétiques ont été conçues pour assurer un confort thermique optimal, notamment en période estivale.
La résidence met également à disposition des espaces partagés, des jardins et des coeurs d'îlots paysagers, participant à un cadre de vie agréable et apaisé.
Autres logements T2 du programme "Emulation – Le Central"
| Disponibilité | Prix | No | Genre | Pièces | Surface | Étage | Disponibilité | Prix | ||
|---|---|---|---|---|---|---|---|---|---|---|
| Voir | Disponible | 295 000€ | D206 | Appt. | T2 | 49.88m2 | 2ème | Disponible | 295 000€ | Voir |
| Voir | Disponible | 263 000€ | D105 | Appt. | T2 | 42.66m2 | 1er | Disponible | 263 000€ | Voir |
| Voir | Optionné | 267 000€ | D505 | Appt. | T2 | 41.43m2 | 5ème | Optionné Mais pas encore vendu 😉 | 267 000€ | Voir |
| Voir | Disponible | 301 000€ | D506 | Appt. | T2 | 49.88m2 | 5ème | Disponible | 301 000€ | Voir |
| Voir | Disponible | 263 000€ | D108 | Appt. | T2 | 42.66m2 | 1er | Disponible | 263 000€ | Voir |
| Voir | Disponible | 237 000€ | D104 | Appt. | T2 | 39.58m2 | 1er | Disponible | 237 000€ | Voir |
| Voir | Disponible | 251 000€ | D101 | Appt. | T2 | 43.93m2 | 1er | Disponible | 251 000€ | Voir |
| Voir | Disponible | 259 000€ | D103 | Appt. | T2 | 42.18m2 | 1er | Disponible | 259 000€ | Voir |
| Voir | Disponible | 305 000€ | D111 | Appt. | T2 | 55.29m2 | 1er | Disponible | 305 000€ | Voir |