Prix
265 000€
265 000€
Type
Appt. au 0-RDC
Appt. au 0-RDC
Pièces
T3
T3
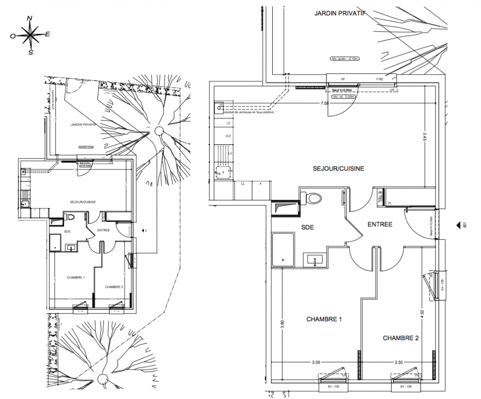
Surface
62.67 m²
62.67 m²
Exposition
Nord
Nord
Ville
Le Crotoy (80550)
Le Crotoy (80550)
Livraison
3ème trimestre 2026
3ème trimestre 2026
Informations
01 81 80 39 10
01 81 80 39 10
Présentation du programme "Rivage de la Baie"
Pour votre achat immobilier dans la baie de Somme, alliez le charme d’une station balnéaire réputée au confort d’une résidence intimiste nichée dans un parc arboré. Au cœur du Crotoy et à quelques pas de sa plage exposée plein sud, cette nouvelle signature Vianova marie l’élégance de matériaux nobles et la beauté d’une végétation préservée pour composer un havre de paix. Déclinés du studio au 4 pièces, avec balcons ou jardins privatifs, les appartements se prêtent à tous vos projets, pour vivre, acquérir une belle résidence secondaire ou réaliser un placement de choix à deux pas de la mer.