Prix
300 000€
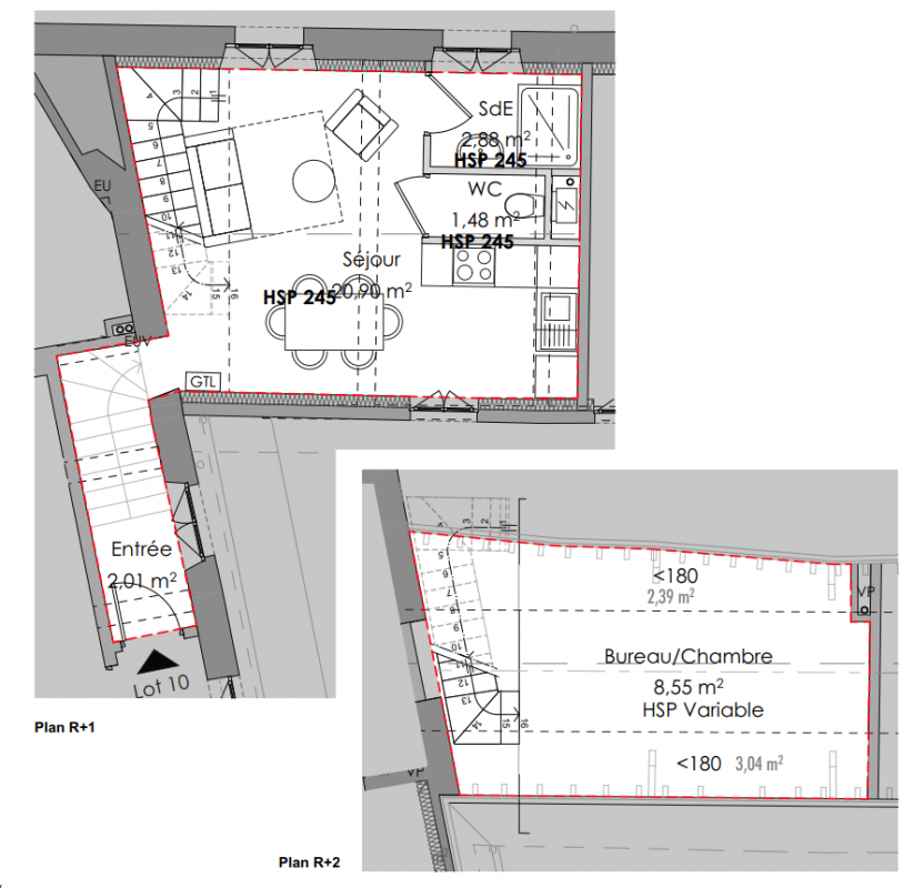
Type
Appt. au 1er
Pièces
Studio
Surface
35.82 m²
Exposition
-
Ville
Montreuil (62170)
Livraison
4ème trimestre 2028
Informations
01 81 80 39 10

Présentation du programme "L'HOTEL DE LA COUR DE FRANCE"

Protégée au titre des Monuments Historiques depuis 1947, cette ancienne auberge du XVIIème siècle s'organise autour d'une cour pavée à l'abri des regards. Ses murs en pans de bois ont accueilli des personnages illustres, dont l'écrivain le plus célèbre du XIXème siècle : Victor Hugo. Locataire d'un appartement donnant sur la cour, ce dernier s'en inspirra plus tard lorsqu'il entreprit la rédaction des Misérables.
En contrefort du Touquet, la citadelle pré-Vauban de Montreuil-sur-Mer offre une vue à couper le souffle sur la campagne qui jouxte la Côte d'Opale. En son cœur, Montreuil-sur-Mer est un village touristique pittoresque prisé des touristes français et étrangers, qui offre tous les commerces, services, transports et écoles à pied.Visite Virtuelle : https://beauregard.3d.virtualbuilding.fr/hoteldelacourdefrance
Ce programme patrimonial propose 17 appartements du T1 au T3 et offre plus de 80% de travaux éligibles aux dispositifs Monuments Historiques, et Déficit foncier.

Autres logements Studio du programme "L'HOTEL DE LA COUR DE FRANCE"

Disponibilité Prix Genre Pièces Surface Étage
Voir
Optionné
250 000€ Appt. Studio 29.13m2 0-RDC
DO NOT CLICK