Prix
495 000€
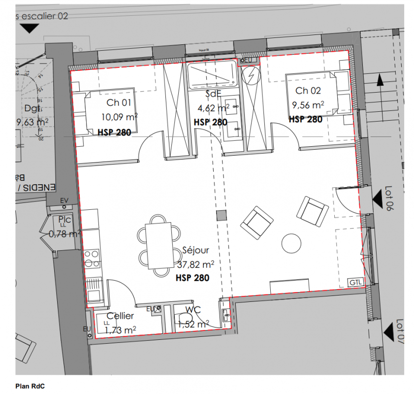
Type
Appt. au 0-RDC
Pièces
T3
Surface
65.34 m²
Exposition
-
Ville
Montreuil (62170)
Livraison
4ème trimestre 2028
Informations
01 81 80 39 10

Présentation du programme " L'HOTEL DE LA COUR DE FRANCE "

Protégée au titre des Monuments Historiques depuis 1947, cette ancienne auberge du XVIIème siècle s'organise autour d'une cour pavée à l'abri des regards. Ses murs en pans de bois ont accueilli des personnages illustres, dont l'écrivain le plus célèbre du XIXème siècle : Victor Hugo. Locataire d'un appartement donnant sur la cour, ce dernier s'en inspirra plus tard lorsqu'il entreprit la rédaction des Misérables.
En contrefort du Touquet, la citadelle pré-Vauban de Montreuil-sur-Mer offre une vue à couper le souffle sur la campagne qui jouxte la Côte d'Opale. En son cœur, Montreuil-sur-Mer est un village touristique pittoresque prisé des touristes français et étrangers, qui offre tous les commerces, services, transports et écoles à pied.
Ce programme patrimonial propose 17 appartements du T1 au T3 et offre plus de 80% de travaux éligibles aux dispositifs Monuments Historiques, et Déficit foncier.

Autres logements T3 du programme " L'HOTEL DE LA COUR DE FRANCE "

Disponibilité Prix Genre Pièces Surface Étage
Voir
Disponible
463 000€ Appt. T3 59.99m2 0-RDC
Voir
Disponible
448 000€ Appt. T3 55.14m2 1er
DO NOT CLICK