332 000€
Appt. au 1er
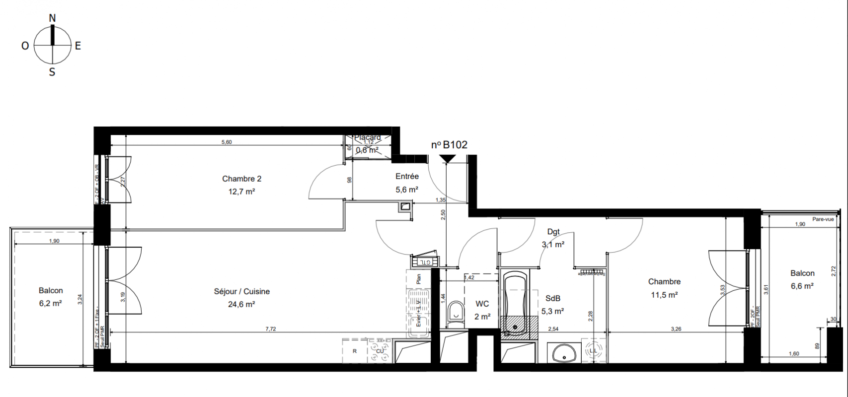
T3
66.3 m²
Ouest
Cucq (62780)
1er trimestre 2027
01 81 80 39 10
Présentation du programme "Programme neuf Cucq (62780)"
DEMARRAGE DES TRAVAUX à STELLA-PLAGE ! Achetez votre appartement du studio au 3 pièces. Pour les investisseurs, profitez du dispositif LMNP pour louer aux portes du Touquet-Paris-Plage ! A seulement 600 m. de la plage, déployée face à la place du marché et tout proche de l’animation des commerces du boulevard Labrasse, notre future résidence vous propose des appartements neufs, du studio au 5 pièces.Considérée comme « la petite sœur du Touquet », la commune de Cucq, dans le département du Pas-de-Calais, est située à seulement 7 km au sud du Touquet-Paris-Plage. Aux amoureux de la mer et de la nature, elle propose un cadre de vie de qualité, aux paysages préservés : dunes majestueuses, forêts verdoyantes et plages de sable fin. Promettant convivialité et animation, la nouvelle résidence prend place au cœur d’un quartier attrayant avec ses commerces de proximité au pied de la résidence mais aussi ses restaurants, ses cafés et ses activités balnéaires. Faisant face à la place du marché, les résidents pourront profiter d’une atmosphère vivante et conviviale où les étals colorés offrent une variété de produits frais et locaux.L’architecture, aux nombreuses variations de rythme et de volumétrie, à la manière de petites maisons, répond harmonieusement aux résidences voisines. Côté déplacements, de nombreux arrêts de bus se trouvent à proximité de la résidence et offrent des liaisons régulières vers les villes voisines, notamment vers la station balnéaire du Touquet-Paris-Plage. En voiture, l’accès aux routes principales est rapide et pratique, permettant ainsi de rejoindre facilement les principaux axes routiers de la région.Contactez dès maintenant un de nos conseillers pour découvrir tous nos appartements neufs à Stella-Plage et pour concrétiser votre projet immobilier !Cette résidence est en co-promotion avec Maxi Groupe.
Autres logements T3 du programme "Programme neuf Cucq (62780)"
| Disponibilité | Prix | No | Genre | Pièces | Surface | Étage | Disponibilité | Prix | ||
|---|---|---|---|---|---|---|---|---|---|---|
| Voir | Disponible | 355 600€ | B001 | Appt. | T3 | 66.3m2 | 0-RDC | Disponible | 355 600€ | Voir |
| Voir | Disponible | 307 500€ | B306 | Appt. | T3 | 61.3m2 | 3ème | Disponible | 307 500€ | Voir |
| Voir | Disponible | 356 500€ | C001 | Appt. | T3 | 68.3m2 | 0-RDC | Disponible | 356 500€ | Voir |
| Voir | Disponible | 317 500€ | C101 | Appt. | T3 | 61.5m2 | 1er | Disponible | 317 500€ | Voir |