104 531€ (TVA 20%)
91 900€ (TVA 5.5%)
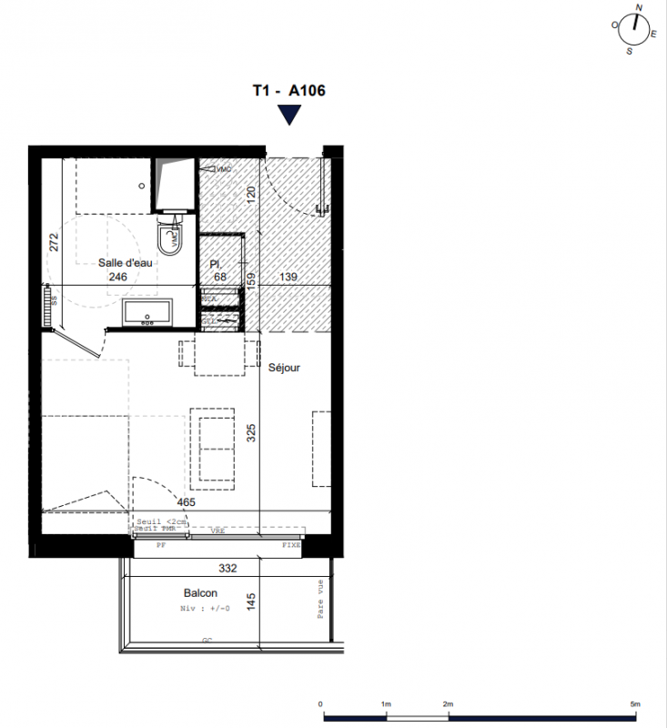
Appt. au 1er
Studio
26.54 m²
-
Béthune (62400)
4ème trimestre 2028
01 81 80 39 10
Présentation du programme "EQUILIBRE"
Devenez propriétaire à Béthune avec TVA réduite 5,5 % et PTZ*
Située dans le quartier de l'Horlogerie, la résidence bénéficie d'un environnement en pleine transformation, à proximité du centre-ville, de la gare et de nombreux commerces et services.
ÉQUILIBRE propose des appartements du studio au 5 pièces, adaptés à tous les parcours de vie : primo-accédants, familles ou investisseurs.
Implantée dans un écoquartier en développement, la résidence s'inscrit dans une dynamique urbaine moderne, alliant accessibilité, qualité de vie et proximité des essentiels du quotidien.
Son architecture contemporaine et ses volumes équilibrés participent à une intégration harmonieuse dans son environnement.
Les appartements offrent :
•Des agencements optimisés et fonctionnels
•Des pièces de vie lumineuses
•Des espaces extérieurs (loggias) prolongeant les séjours
•Une conception pensée pour le confort au quotidien
Les + du programme :
•Large choix de typologies du studio au 5 pièces
•Espaces extérieurs pour la majorité des logements
•Quartier en développement avec fort potentiel
•Proximité des commerces, établissements scolaires et transports
Au quotidien, profitez d'un environnement pratique :
•Gare de Béthune accessible rapidement
•Commerces, restaurants et services à proximité
•Équipements sportifs, culturels et universitaires accessibles
•Accès rapide aux grands pôles (Lille, Lens)
Un cadre de vie urbain équilibré, idéal pour habiter ou investir dans un quartier en devenir, alliant dynamisme et confort de vie.
Contactez-nous dès maintenant au 02 52 07 10 08 pour recevoir la brochure et découvrir les disponibilités.
Autres logements Studio du programme "EQUILIBRE"
| Disponibilité | Prix | No | Genre | Pièces | Surface | Étage | Disponibilité | Prix | ||
|---|---|---|---|---|---|---|---|---|---|---|
| Voir | Disponible | 102 256€ | A205 | Appt. | Studio | 25.12m2 | 2ème | Disponible | 102 256€ | Voir |
| Voir | Disponible | 105 668€ | A305 | Appt. | Studio | 25.12m2 | 3ème | Disponible | 105 668€ | Voir |
| Voir | Disponible | 104 531€ | A104 | Appt. | Studio | 25.94m2 | 1er | Disponible | 104 531€ | Voir |
| Voir | Disponible | 107 943€ | A204 | Appt. | Studio | 25.94m2 | 2ème | Disponible | 107 943€ | Voir |
| Voir | Disponible | 111 355€ | A304 | Appt. | Studio | 25.94m2 | 3ème | Disponible | 111 355€ | Voir |
| Voir | Disponible | 107 943€ | A206 | Appt. | Studio | 26.54m2 | 2ème | Disponible | 107 943€ | Voir |
| Voir | Disponible | 111 355€ | A306 | Appt. | Studio | 26.54m2 | 3ème | Disponible | 111 355€ | Voir |
| Voir | Disponible | 112 493€ | A108 | Appt. | Studio | 28.32m2 | 1er | Disponible | 112 493€ | Voir |
| Voir | Disponible | 115 905€ | A208 | Appt. | Studio | 28.32m2 | 2ème | Disponible | 115 905€ | Voir |
| Voir | Disponible | 119 318€ | A308 | Appt. | Studio | 28.32m2 | 3ème | Disponible | 119 318€ | Voir |
| Voir | Disponible | 112 493€ | A107 | Appt. | Studio | 28.87m2 | 1er | Disponible | 112 493€ | Voir |
| Voir | Disponible | 115 905€ | A207 | Appt. | Studio | 28.87m2 | 2ème | Disponible | 115 905€ | Voir |
| Voir | Disponible | 119 318€ | A307 | Appt. | Studio | 28.87m2 | 3ème | Disponible | 119 318€ | Voir |
| Voir | Disponible | 96 569€ | A105 | Appt. | Studio | 25.12m2 | 1er | Disponible | 96 569€ | Voir |