Prix
310 000€
Type
Appt. au 1er
Pièces
T3
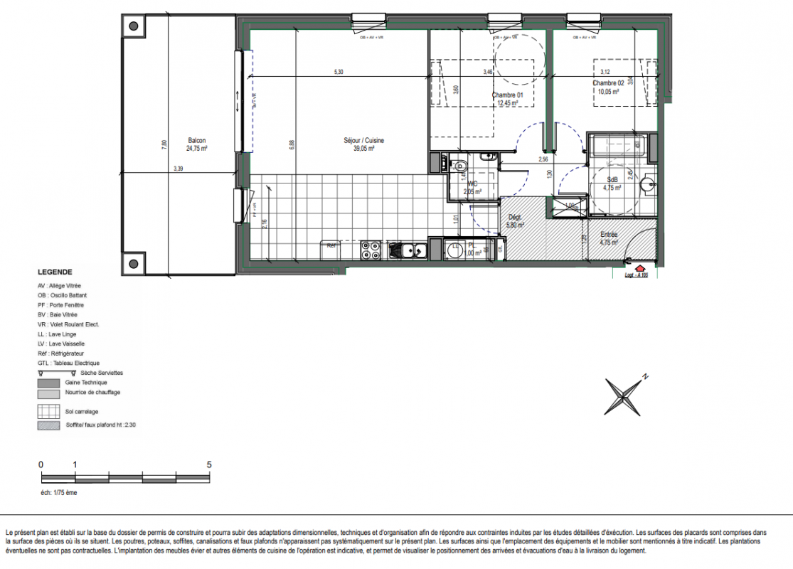
Surface
79.9 m²
Exposition
-
Ville
Arras (62000)
Livraison
2ème trimestre 2027
Informations
01 81 80 39 10

Présentation du programme "La Belle Echappée - ARRAS"

Devenez propriétaire à partir de 686 € par mois** dans une résidence intimiste alliant confort, modernité et nature.

Nichée dans un environnement verdoyant, la résidence s'intègre harmonieusement entre ville et nature, tout en restant à seulement quelques minutes du centre-ville de Saint-Nicolas.

Avec son architecture contemporaine et élégante, cette réalisation à taille humaine propose des appartements lumineux aux beaux volumes, prolongés par un balcon ou une terrasse afin de profiter pleinement du cadre extérieur.

Pensée pour offrir une qualité de vie agréable au quotidien, la résidence séduit par son atmosphère paisible, sa proximité avec les commerces et services ainsi que son environnement résidentiel recherché.

Une belle opportunité pour habiter ou investir dans un cadre privilégié aux portes d'Arras.

Un projet signé Nacarat et Icade.

* Frais de notaire offerts hors frais de publicité foncière, frais d'établissement du règlement de copropriété et frais liés au financement et aux garanties pour la réservation d'un appartement dans la résidence « La Belle Échappée » à Arras jusqu'au 30/06/2026, sous réserve de la signature de l'acte de vente dans les délais prévus au contrat de réservation.

Autres logements T3 du programme "La Belle Echappée - ARRAS"

Disponibilité Prix Genre Pièces Surface Étage
Voir
Disponible
260 000€ Appt. T3 71.15m2 1er
DO NOT CLICK